Objektbeschreibung
Istrien, Umag – Umgebung
Haus 1
Zum Verkauf steht eine einzigartige moderne Doppelhaushälfte mit Swimmingpool in der Nähe von Umag.
Das Haus liegt in ruhiger Lage umgeben von Natur und Grün. Es ist 2,5 km von der Stadt Umag, 1,5 km vom Meer, 7 km vom Golfplatz und 13 km
Mehr lesen
Objekt ID: 1611393
Preis: € 520.000
Nutzfläche: 0 m2
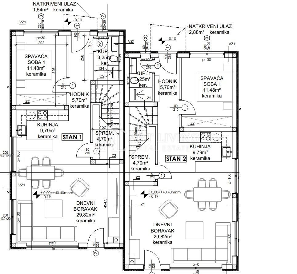
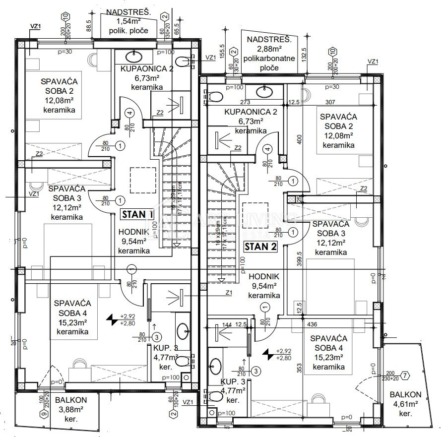
Gesamtfläche: 300 m2
Ziimmer insgesamt: 5
Schlafzimmer: 5
Badezimmer: 3
Nutzungsart: Wohnen
Provisionspflichtig: ja
Ähnliche Objekte
Umag, Doppelhaushälfte mit Pool nur 150 m vo...
€ 1.375.000
6
Schlafzimmer
3
Badezimmer
Februar 28, 2026





















