Objektbeschreibung
Istrien, Poreč, Umgebung
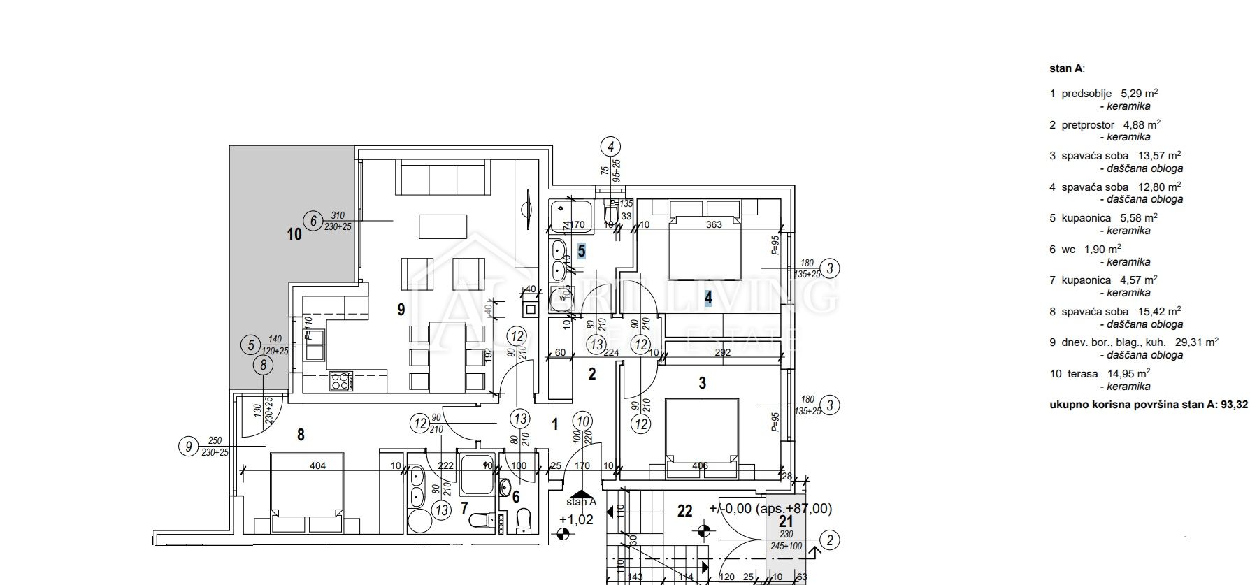
Wohnung A
Zum Verkauf steht eine luxuriöse Dreizimmerwohnung mit Pool in modernem Design in einem neuen Gebäude in ruhiger und schöner Lage, nur 4 km von der Stadt Poreč und ihren wunderschönen Stränden entfernt.
Die Wohnung befindet sich im Erdgeschoss eines Gebäudes mit insgesamt 4 Wohneinheiten.
Die
Mehr lesen
Objekt ID: 1611464
Preis: € 460.000
Nutzfläche: 0 m2
Gesamtfläche: 0 m2
Ziimmer insgesamt: 4
Schlafzimmer: 4
Badezimmer: 2
Nutzungsart: Wohnen
Provisionspflichtig: ja
WC: 1




























