Objektbeschreibung
VODICE – Perfekte Wohnung (Neubau) in einem ruhigen Teil von Vodice
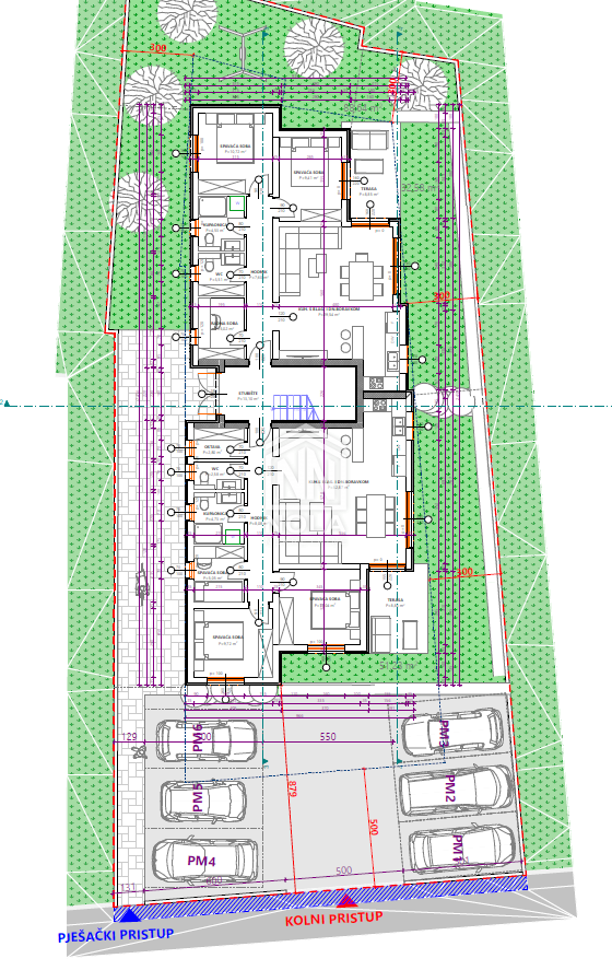
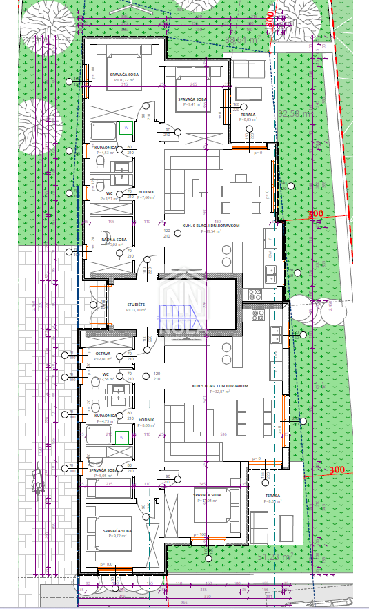
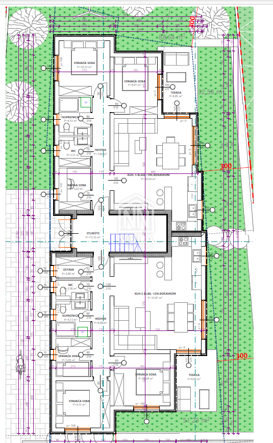
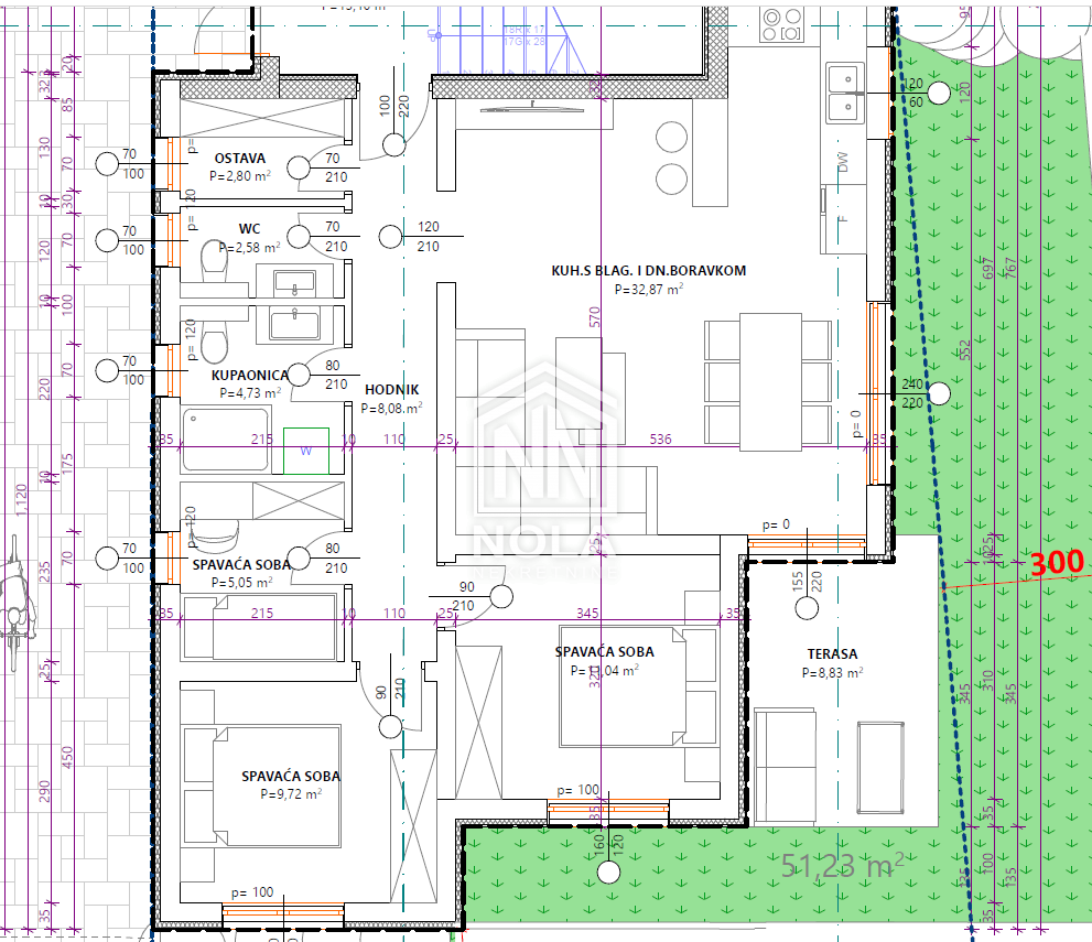
S2 ERDGESCHOSS
Zum Verkauf steht eine schöne Wohnung in einem Neubau, gelegen in einem ruhigen Teil von Vodice, nur 1300 Meter vom Strand und dem Stadtzentrum entfernt. Vodice ist für seine reiche Geschichte, seine wunderschönen Strände und seinen lebendigen
Mehr lesen
Objekt ID: 1616858
Preis: € 210.000
Nutzfläche: 0 m2
Gesamtfläche: 0 m2
Ziimmer insgesamt: 4
Schlafzimmer: 4
Badezimmer: 1
Nutzungsart: Wohnen
Provisionspflichtig: ja
WC: 1





