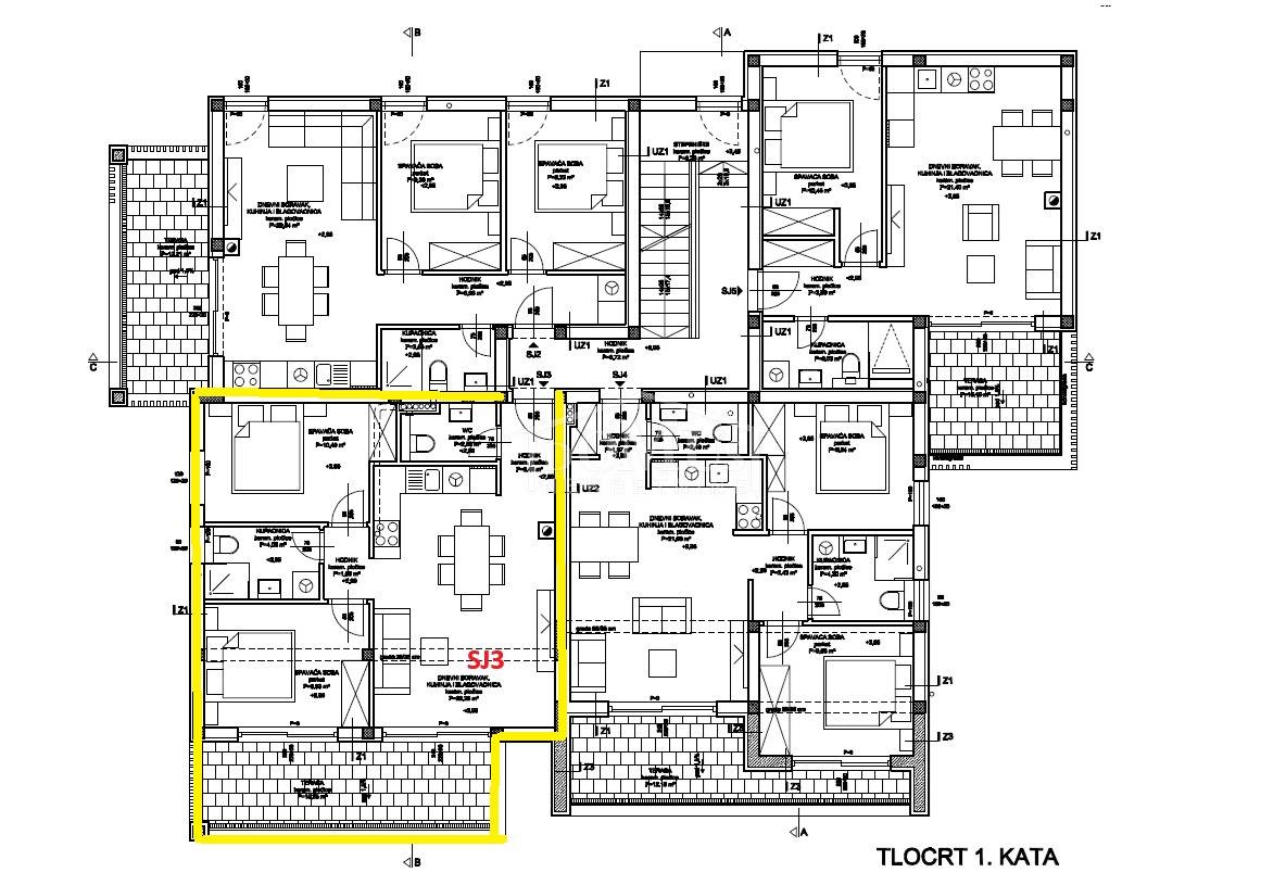
Objektbeschreibung
Vodice, in Strandnähe, befindet sich ein neu erbautes Wohngebäude mit 10 Wohneinheiten. Das Gebäude verfügt über drei Etagen: Erdgeschoss, 1. und 2. Stock. Das Gebäude ist modern ausgestattet und verfügt über Fußbodenheizung, hochwertige Böden und Innenausstattung, Klimaanlagen zum Heizen und Kühlen in jedem Zimmer sowie elektrische Rollläden. Der voraussichtliche Einzugstermin
Mehr lesen
Objekt ID: 1636067
Preis: € 268.000
Nutzfläche: 0 m2
Gesamtfläche: 0 m2
Ziimmer insgesamt: 3
Schlafzimmer: 3
Badezimmer: 1
Nutzungsart: Wohnen
Provisionspflichtig: ja
WC: 1


















