Objektbeschreibung
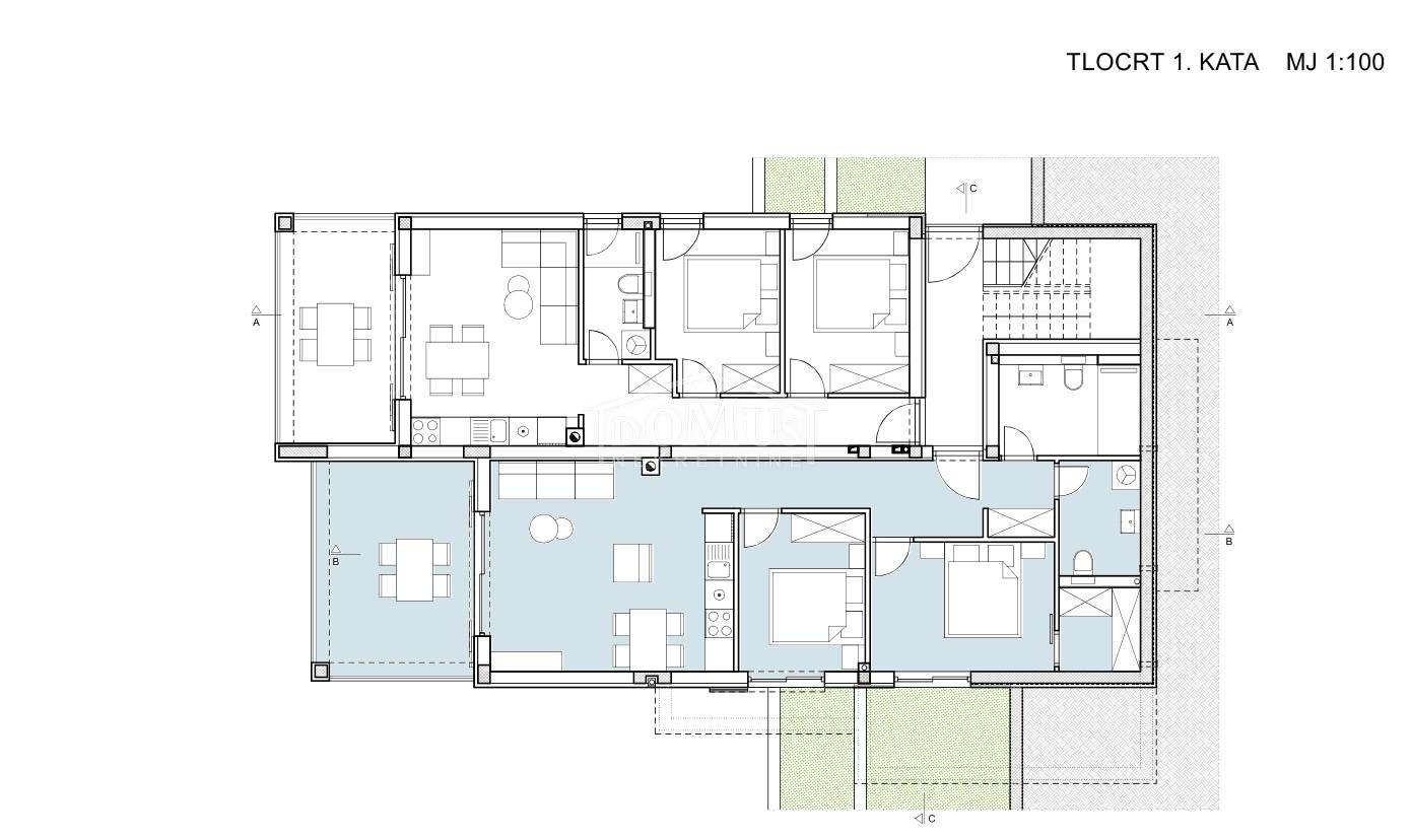
Insel Murter, Jezera, direkt am Strand, 1. Reihe zum Meer, neues Mehrfamilienhaus mit insgesamt 8 Wohneinheiten. Geplanter Baubeginn ist Herbst 2024, die Fertigstellung ist Frühjahr 2026. Die WOHNEINHEIT S4 befindet sich im 1. Stock eines nach Südosten ausgerichteten Mehrfamilienhauses und verfügt über eine Nutzfläche von 82,85 m². Sie besteht aus
Mehr lesen
Objekt ID: 1637327
Preis: € 505.385
Nutzfläche: 0 m2
Gesamtfläche: 0 m2
Ziimmer insgesamt: 3
Schlafzimmer: 3
Badezimmer: 0
Nutzungsart: Wohnen
Provisionspflichtig: ja










