Objektbeschreibung
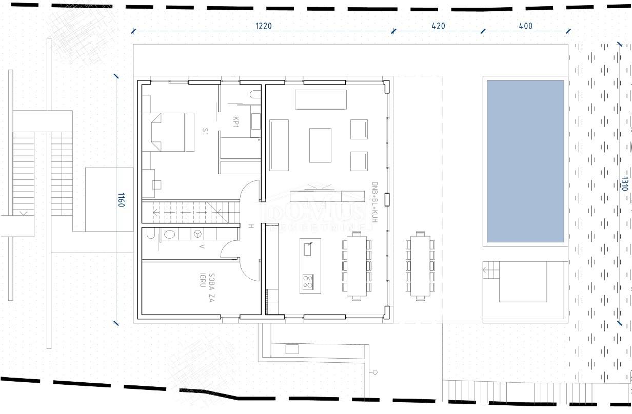
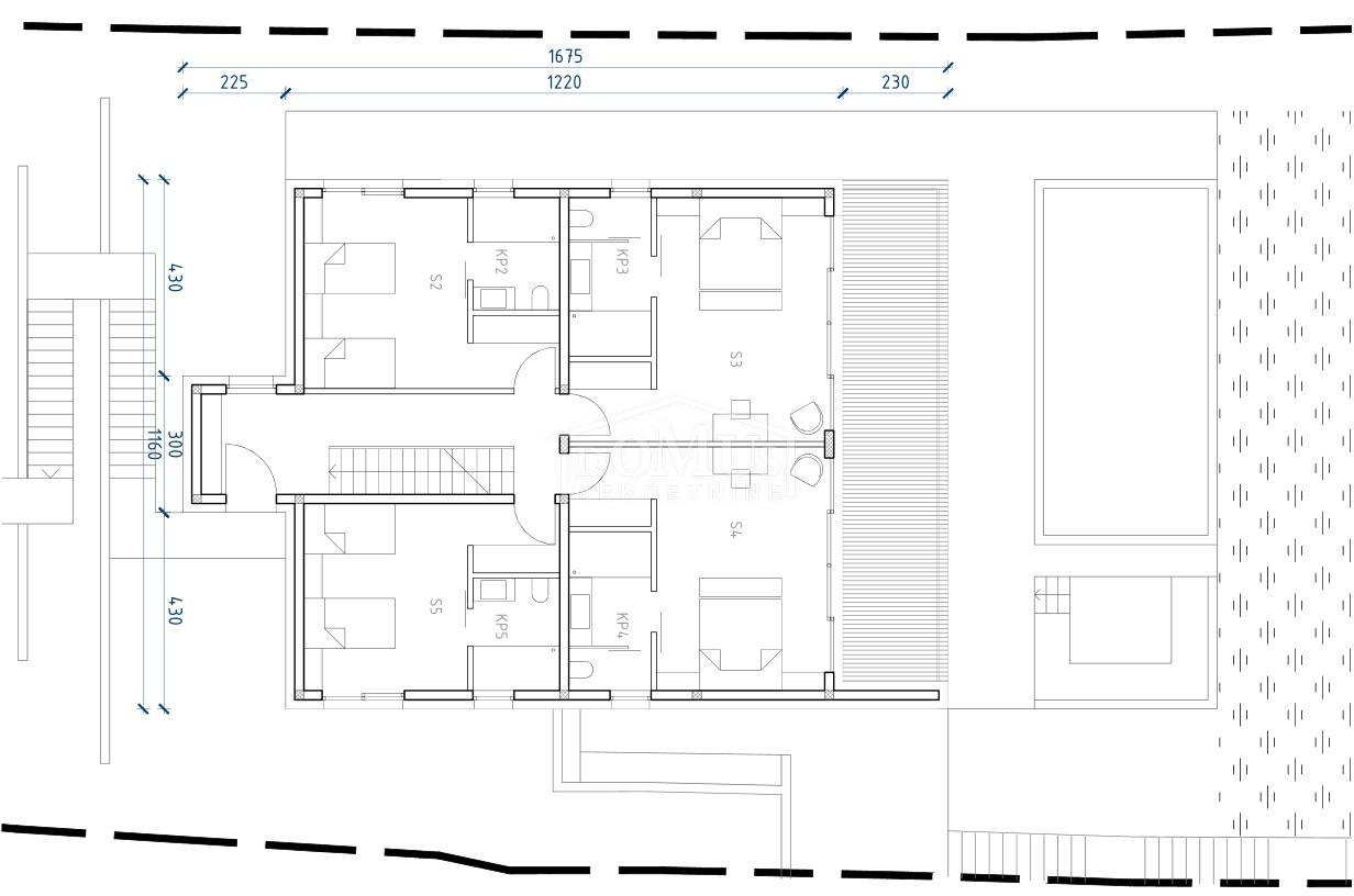
Šparadići, attraktive Lage, 2. Reihe zum Meer und Strand, Baugrundstück von 865 m2 mit Meerblick. Für das Grundstück wurde eine Projektdokumentation erstellt und eine gültige Baugenehmigung für den Bau eines freistehenden Wohngebäudes, eines Einfamilienhauses EG + 1.Stock + 2.Stock mit einer Bruttofläche von 302,70 m2, eingeholt. Der Zugang zum Grundstück
Mehr lesen
Objekt ID: 1639897
Preis: € 380.000
Nutzfläche: 0 m2
Gesamtfläche: 0 m2
Ziimmer insgesamt: 0
Schlafzimmer: 0
Badezimmer: 0
Nutzungsart: Anlage
Provisionspflichtig: ja













