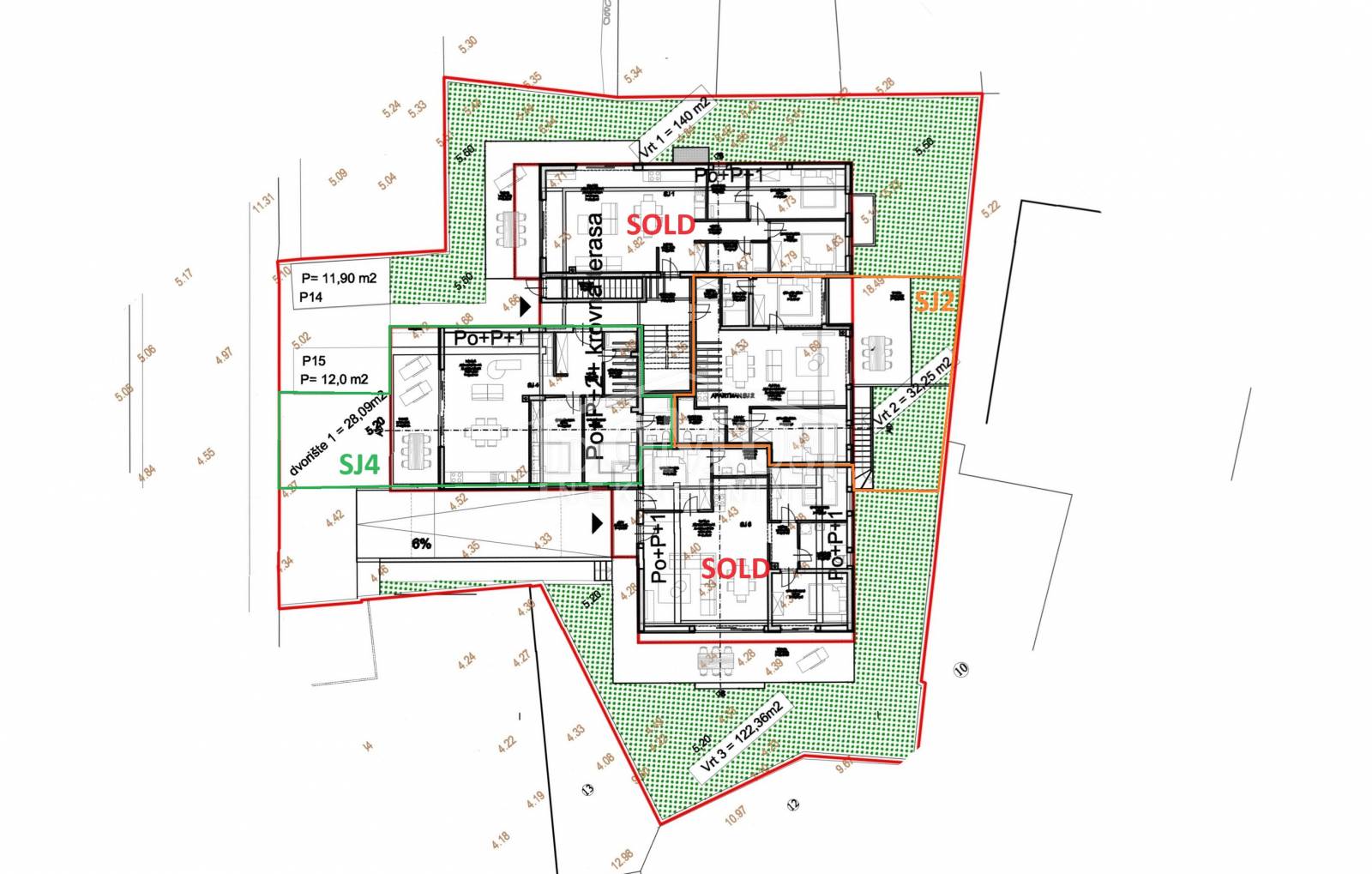
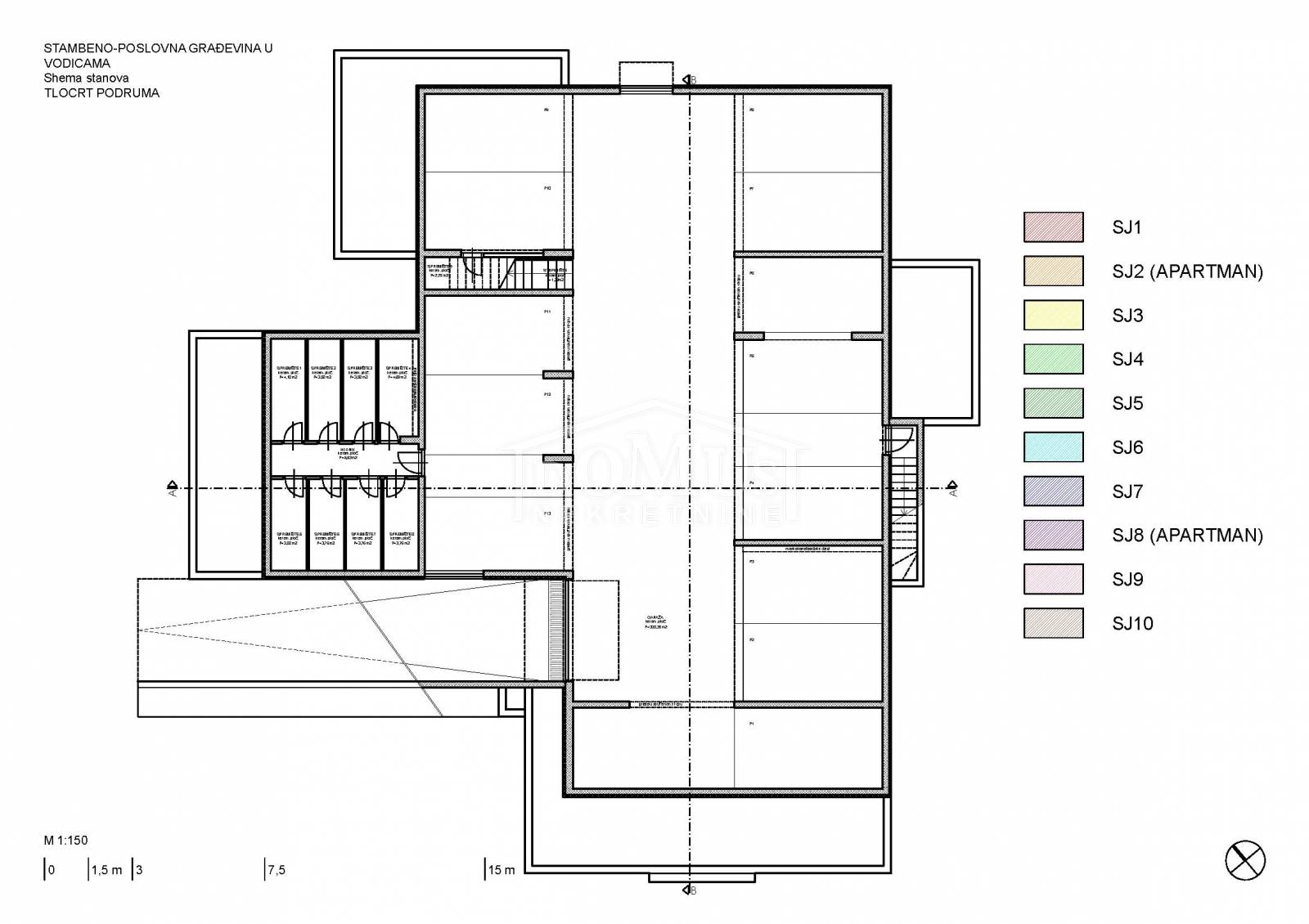
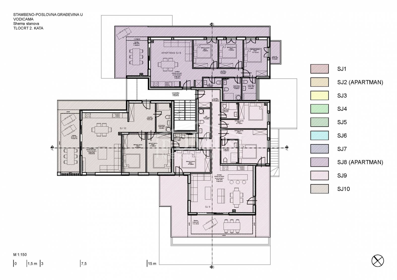
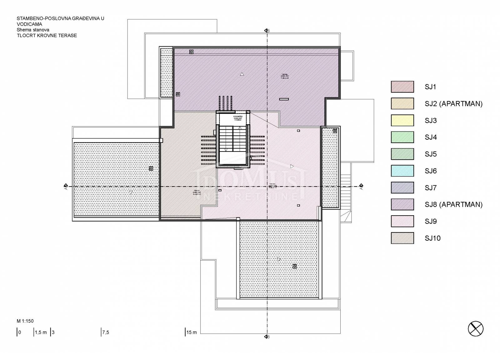
Objektbeschreibung
Vodice, in unmittelbarer Nähe des Stadtzentrums und neben einem der attraktivsten Strände der Stadt, entsteht ein neues, modernes Mehrfamilienhaus nach neuesten Standards, ausgestattet mit hochwertigen Materialien und Geräten wie eine Thermofassade, PVC-Zimmerei in der Farbe Anthrazit mit elektrischen Jalousien und Moskitonetzen, einbruchhemmende und feuersichere Eingangstüren, hochwertige Bodenbeläge, elektrische Fußbodenheizung in
Mehr lesen
Objekt ID: 1640368
Preis: € 510.000
Nutzfläche: 0 m2
Gesamtfläche: 0 m2
Ziimmer insgesamt: 4
Schlafzimmer: 4
Badezimmer: 2
Nutzungsart: Wohnen
Provisionspflichtig: ja
WC: 1

















