Objektbeschreibung
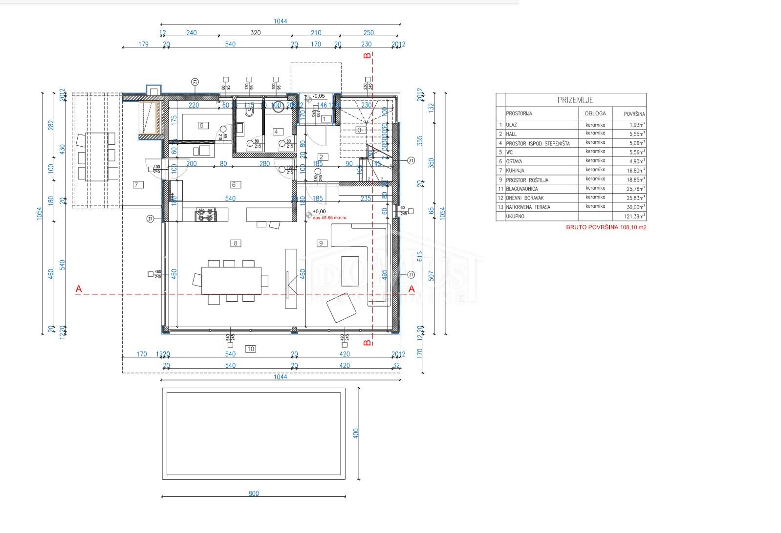
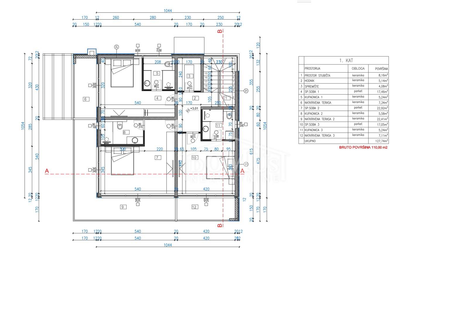
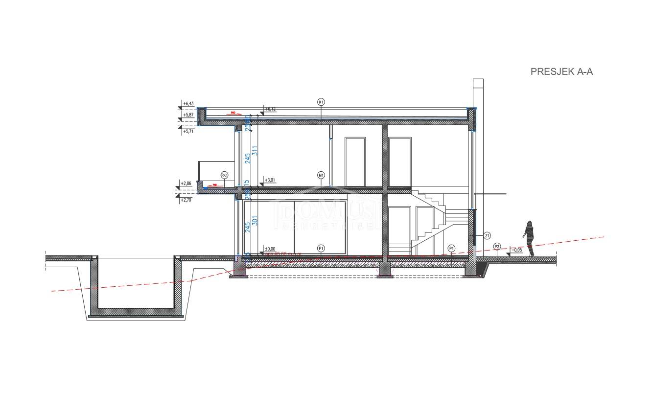
Grebaštica, ruhige Lage, attraktives Baugrundstück mit Meerblick, Fläche 1.716m2. Das Grundstück verfügt über eine Projektdokumentation und 3 Baugenehmigungen für den Bau von 3 Einfamilienhäusern, jedes Haus auf zwei Etagen P+1 mit einer Gesamtfläche von 218 m2 und einem Swimmingpool von 32 m2. Das Land hat eine regelmäßige Form mit einem
Mehr lesen
Objekt ID: 1641541
Preis: € 365.000
Nutzfläche: 0 m2
Gesamtfläche: 0 m2
Ziimmer insgesamt: 0
Schlafzimmer: 0
Badezimmer: 0
Nutzungsart: Anlage
Provisionspflichtig: ja





















