Objektbeschreibung
_JETZT BAUSTELLE & MUSTERWOHNUNG BESICHTIGEN_
  
Im lebendigen 17. Bezirk entsteht ein Wohnensemble, das Lebensqualität neu definiert. In der Ottakringer Straße 26 und Veronikagasse 31 warten 60 moderne Eigentumswohnungen – verteilt auf zwei Wohnhäuser und ein charmantes Townhouse – auf alle, die ein Zuhause mit besonderem Wohlfühlfaktor suchen. Zusätzlich
Mehr lesen
Objekt ID: 1648029
Preis:  € 270.300 
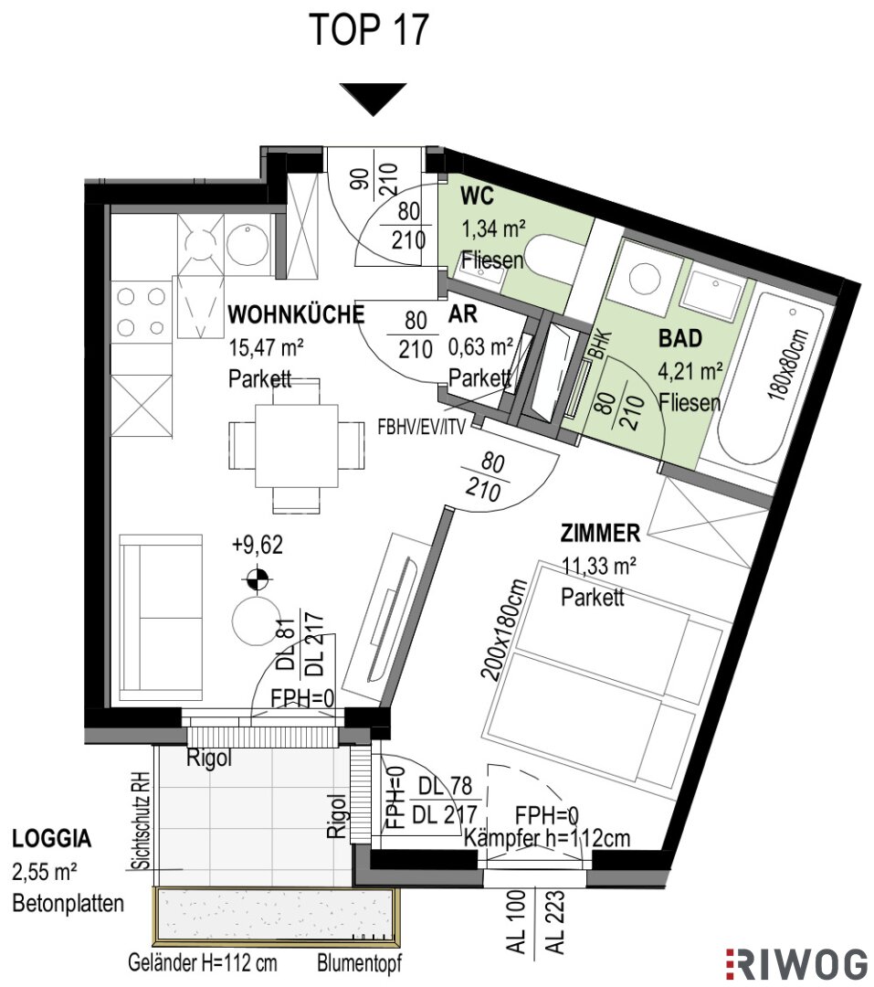
Nutzfläche: 33 m2
Gesamtfläche: 36 m2
Ziimmer insgesamt: 2
Schlafzimmer: 2
Badezimmer: 1
Nutzungsart: Anlage
Provisionspflichtig: ja
Provision: 9.730,80 € inkl. 20% USt.
HWB: 31,10 kWh/(m²*a)
HWB Klasse: B
FGEE: 0.73
E-Ausweis Gültig Bis:: 16.03.2031
Energieausweis Art: Bedarf
Balkon/Terrassen - Fläche: 2
Beziehbar: geplant ab ca. März/2026
Etage: 3. Etage
WC: 1
Abstellräume: 1
barrierefrei
Neubau
Personenaufzug
Badewanne
Fußbodenheizung
Kabel/Sat-TV
Fahrradraum
offene Küche
Abstellraum
Offene Küche
Estrich
Fernwärme
Tiefgarage
Ähnliche Objekte
ERSTBEZUG nach Sanierung I 3 Zimmer Wohnung ...
 € 519.000 
3
Schlafzimmer
1
Badezimmer
81 m2
Größe
 November 4, 2025
NÄHE SCHLOSS SCHÖNBRUNN – Entzückende Eigent...
 € 297.000 
2
Schlafzimmer
1
Badezimmer
70 m2
Größe
 November 4, 2025






