Objektbeschreibung
_JETZT BAUSTELLE & MUSTERWOHNUNG BESICHTIGEN_
Im lebendigen 17. Bezirk entsteht ein Wohnensemble, das Lebensqualität neu definiert. In der Ottakringer Straße 26 und Veronikagasse 31 warten 60 moderne Eigentumswohnungen – verteilt auf zwei Wohnhäuser und ein charmantes Townhouse – auf alle, die ein Zuhause mit besonderem Wohlfühlfaktor suchen. Zusätzlich
Mehr lesen
Objekt ID: 1648126
Preis: € 470.100
Nutzfläche: 0 m2
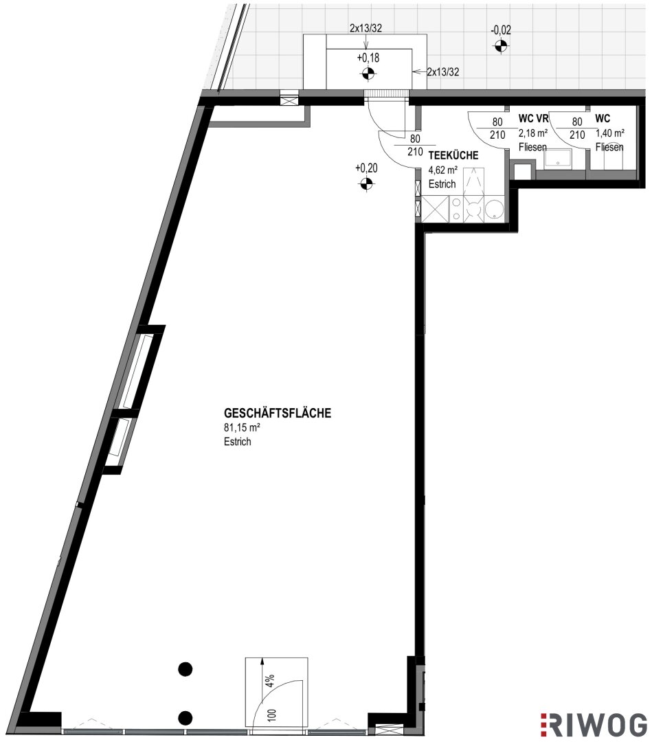
Gesamtfläche: 89 m2
Ziimmer insgesamt: 1
Schlafzimmer: 1
Badezimmer: 0
Nutzungsart: Anlage
Provisionspflichtig: ja
Provision: 16.923,60 € inkl. 20% USt.
HWB: 31,10 kWh/(m²*a)
HWB Klasse: B
FGEE: 0.73
E-Ausweis Gültig Bis:: 16.03.2031
Energieausweis Art: Bedarf
Beziehbar: geplant ab ca. März/2026
Etage: EG
WC: 1
Neubau
Personenaufzug
Gäste-WC
Fußbodenheizung
Fahrradraum
Estrich
Fernwärme
Teeküche
Tiefgarage






