Objektbeschreibung
CHARMANTE 3-ZIMMER-WOHNUNG MIT BALKON IN ABSOLUTER RUHELAGE – SANIERUNGSBEDÜRFTIGES JUWEL IN SIEVERING
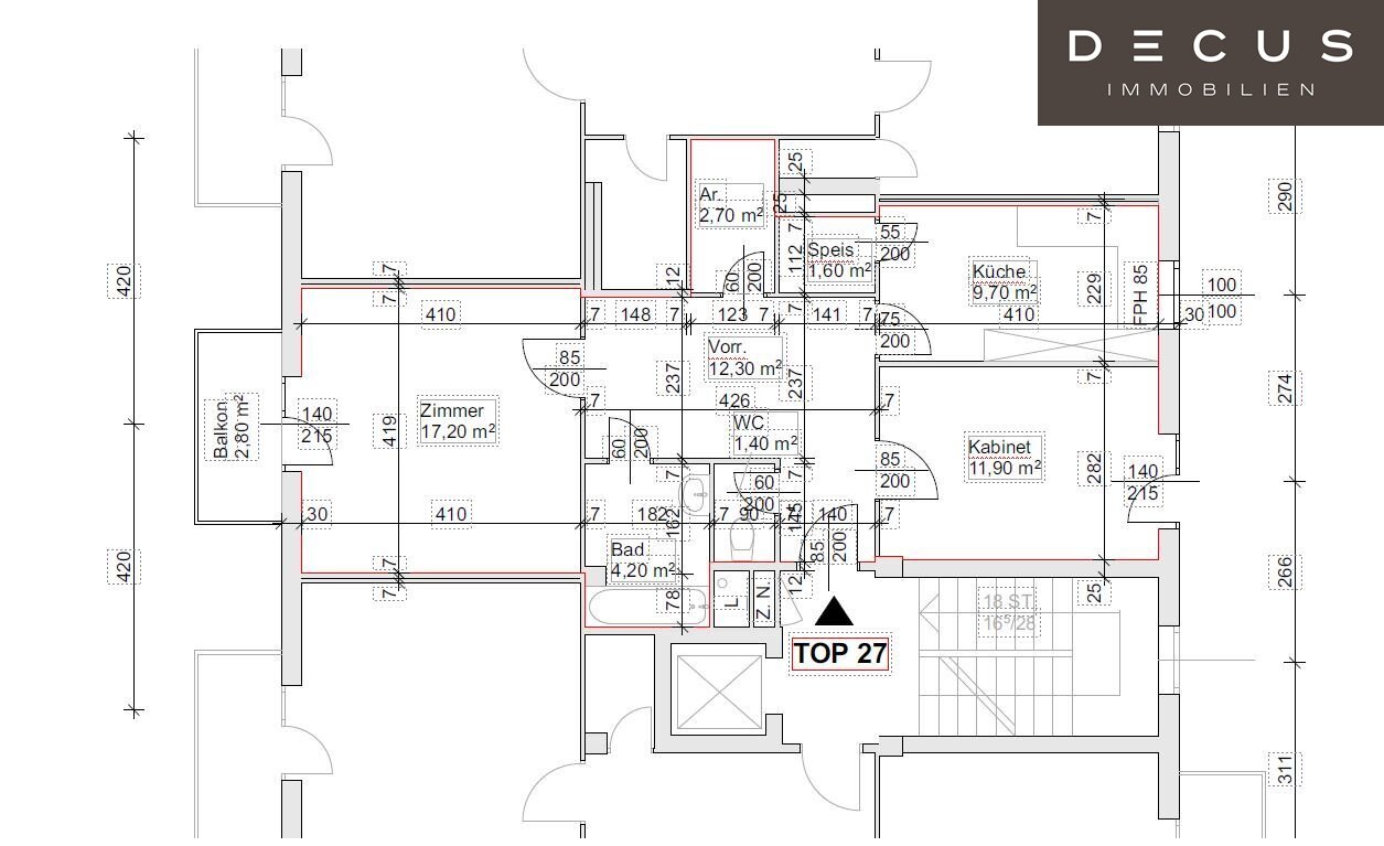
RAUMAUFTEILUNG
Diese rund 61 m² große Wohnung besticht durch eine klassische Raumaufteilung mit getrennten Wohnbereichen. Sie verfügt über:
*
3 Zimmer, die individuell als Wohn-, Schlaf- oder Arbeitszimmer nutzbar sind
*
Separate Küche
Mehr lesen
Objekt ID: 1660637
Preis: € 332.000
Nutzfläche: 61 m2
Gesamtfläche: 64 m2
Ziimmer insgesamt: 3
Schlafzimmer: 3
Badezimmer: 1
Miete/m2 €: 5313.48
Nutzungsart: Wohnen
Provisionspflichtig: ja
Provision: 11.952,00 € inkl. 20% USt.
HWB: 31,93 kWh/(m²*a)
HWB Klasse: B
FGEE: 0.67
E-Ausweis Gültig Bis:: 10.10.2027
Energieausweis Art: Bedarf
Anzahl Balkone: 1
Balkon/Terrassen - Fläche: 2
Etage: 2. Etage
WC: 1
Balkon
Neubau
Ähnliche Objekte
Traumhafte 3-Zimmer + Küche Wohnung mit Logg...
€ 420.000
3
Schlafzimmer
1
Badezimmer
67 m2
Größe
März 19, 2026














