Objektbeschreibung
Dieses Einfamilienhaus in Niklasdorf überzeugt durch seine gemütliche Atmosphäre, die ruhige Lage und den schön angelegten Garten. Errichtet im Jahr 1947, bietet die Immobilie heute rund 109 m² Wohnfläche und eine Grundstücksgröße von 601 m² – ideal für Familien, Paare oder Naturliebhaber, die gleichzeitig eine gute Anbindung schätzen.
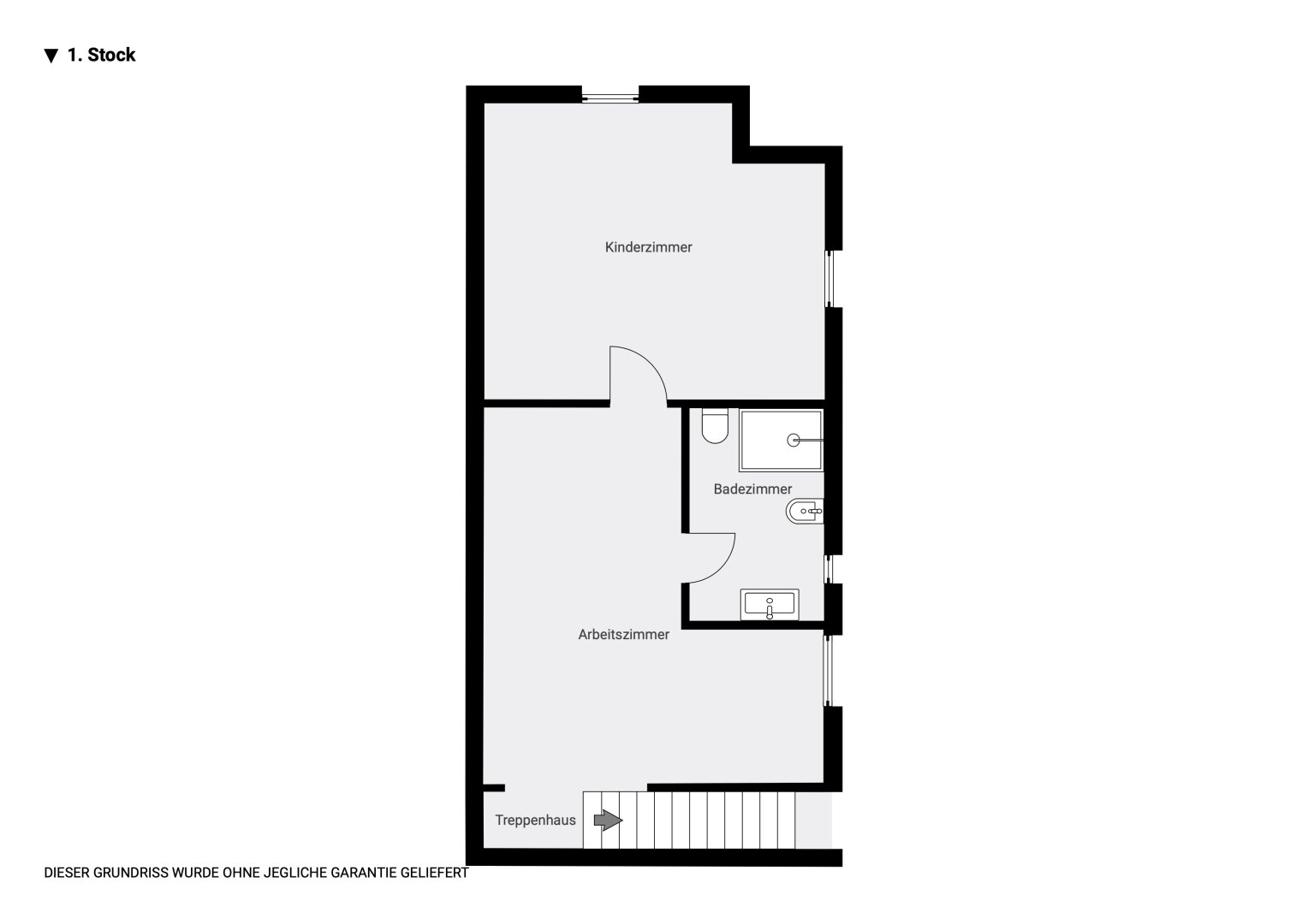
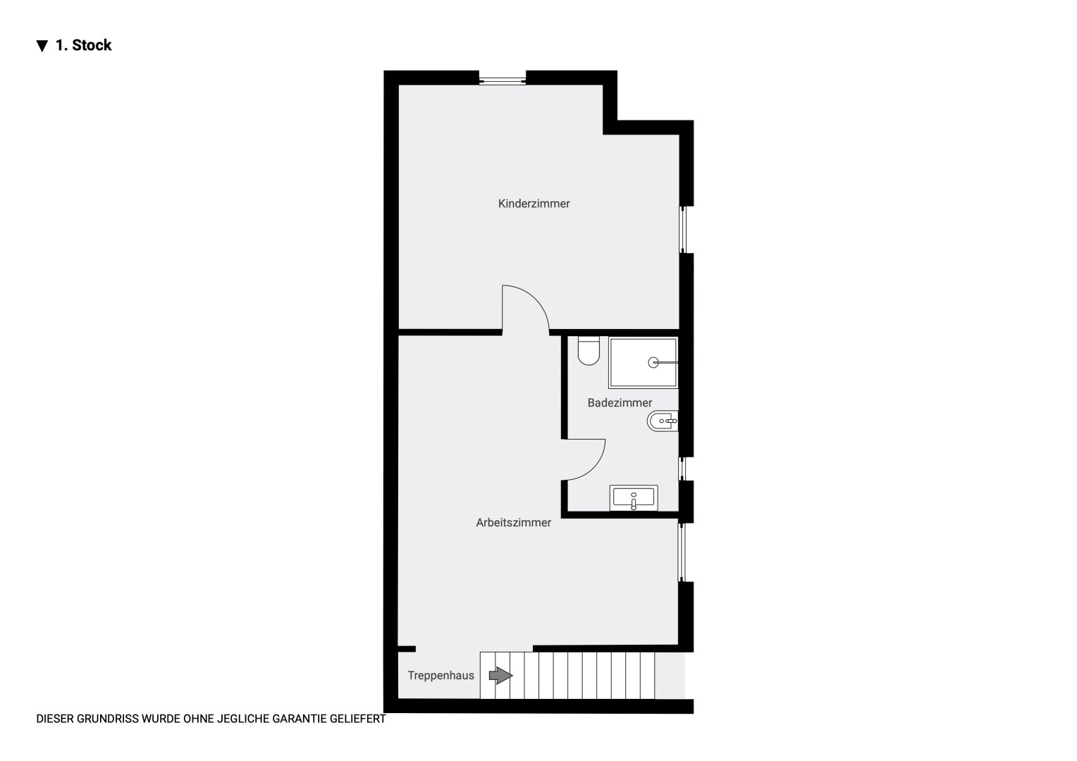
Die Räume
Mehr lesen
Objekt ID: 1665429
Preis: € 210.000
Nutzfläche: 109 m2
Gesamtfläche: 601 m2
Ziimmer insgesamt: 0
Schlafzimmer: 0
Badezimmer: 0
Betriebskosten €: 136
Nutzungsart: Wohnen
Provisionspflichtig: ja
Provision: 3% des Kaufpreises zzgl. 20% USt.
Einbauküche
Gas
Zentralheizung
Carport








