Objektbeschreibung
Gewerbe-/Bürofläche: 77m² Geschäftslokal in befristeter Hauptmiete! Kein Gastro!
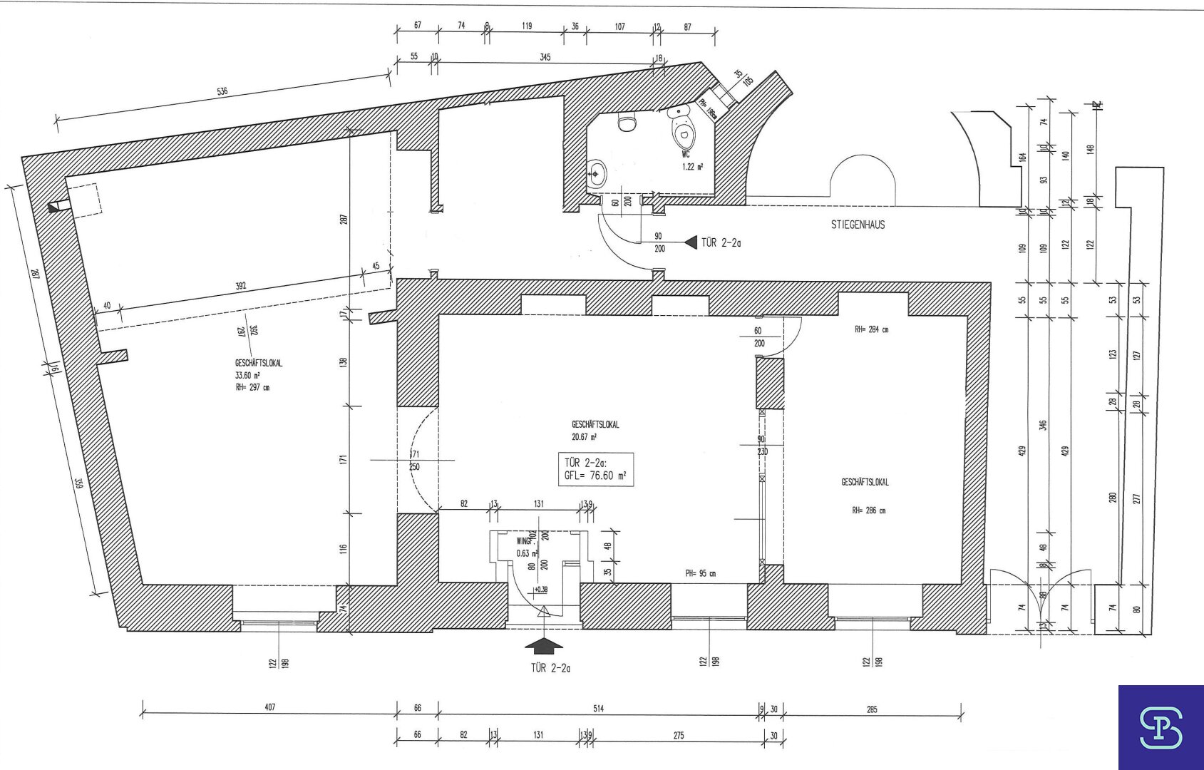
Das angebotene Gassenlokal wird als Rohbau (wie abgebildet) vermietet und befindet sich in einem schönen Altbau in der Großen Mohrengasse. Das Mietobjekt hat eine Nutzfläche von ca. 77m² und besteht derzeit aus 2 großen Räumen, kl. Teeküche, Abstellraum und 2 Sanitärräumen.
Ausstattung: Rohbau (wie abgebildet), 2 Sanitärbereiche, 2
Mehr lesen
Objekt ID: 1667510
Nutzfläche: 0 m2
Gesamtfläche: 77 m2
Ziimmer insgesamt: 3
Schlafzimmer: 3
Badezimmer: 0
Miete (netto) €: 766.7
USt €: 186.58
Nutzungsart: Gewerbe
Provisionspflichtig: ja
HWB: 207 kWh/(m²*a)
HWB Klasse: F
FGEE: 1.99
Energieausweis Art: Bedarf
Beziehbar: sofort
Etage: EG / Erdgeschoß
WC: 2
Altbau
Gas
Kabel/Sat-TV
Estrich
















