Objektbeschreibung
Repräsentativer 193m² Stilaltbau mit 5 Räumen, Einbauküche und Lift Nähe Börse!
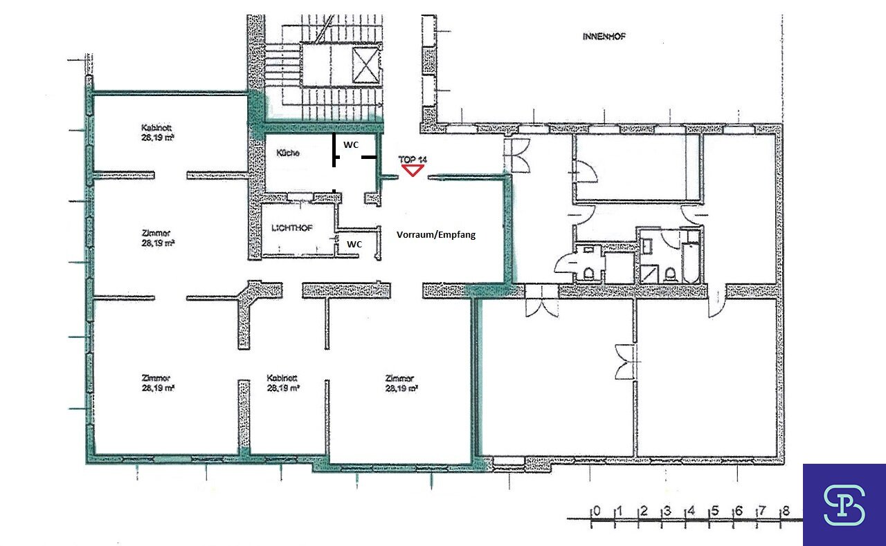
Dieses schöne und sonnige Büro befindet sich im 4. Liftstock eines repräsentativen Stilaltbaus in der Neutorgasse. Die Büroeinheit ist süd- und westseitig ausgerichtet und besteht aus 5 Zimmern, geräumigen Vorraum oder Empfang, Küche, 2 getrennten WC´s und zentral begehbarem Flur,.
Ausstattung: Renovierter, klassischer
Mehr lesen
Objekt ID: 1667730
Nutzfläche: 0 m2
Gesamtfläche: 193 m2
Ziimmer insgesamt: 5
Schlafzimmer: 5
Badezimmer: 0
Miete/m2 €: 16.97
Miete (netto) €: 3274.37
USt €: 733
Nutzungsart: Gewerbe
Provisionspflichtig: ja
Provision: 13.197,60 € inkl. 20% USt.
HWB: 141,40 kWh/(m²*a)
HWB Klasse: D
FGEE: 3.17
E-Ausweis Gültig Bis:: 19.05.2031
Energieausweis Art: Bedarf
Beziehbar: sofort
Etage: 4. Etage / 4. Liftstock
WC: 2
Personenaufzug
Altbau
Parkett
Kabel/Sat-TV
Klimaanlage
Fernheizung
Fernwärme
Teeküche






