Erweiterte Suche
Suchagent aktivieren
Exklusive Anzeigen

Nur noch 3 Häuser verfügbar – Top-Neubau in Ruhelage nahe Wien – 125 m² Wohnfläche + Garten & Terrasse

€ 649.000,00

,

124.724 Zimmer
zu Favoriten hinzufügen
teilen
Suchergebnisse

Objektbeschreibung

In einem charmanten Neubauprojekt mit insgesamt vier Doppelhaushälften im beliebten Hagenbrunn (Bezirk Korneuburg) steht Haus 2 zum Verkauf – ein stilvolles Zuhause mit durchdachtem Raumkonzept, hochwertiger Ausstattung und bester Wohnqualität.

HAUS 1 – VERFÜGBAR

HAUS 2 = VERFÜGBAR

HAUS 3 = VERKAUFT

HAUS 4 = VERFÜGBAR

Ein Video zum Projekt finden
Mehr lesen

Bezirk:
Bundesland:
PLZ: 2102
Land: Österreich
Objekt ID: 1672759
Preis: € 649.000
Nutzfläche: 125 m2
Gesamtfläche: 172 m2
Ziimmer insgesamt: 4
Schlafzimmer: 4
Badezimmer: 2
Nutzungsart: Wohnen
Provisionspflichtig: ja
Provision: 23.364,00 € inkl. 20% USt.
HWB: 33,10 kWh/(m²*a)
HWB Klasse: B
FGEE: 0.65
E-Ausweis Gültig Bis:: 08.01.2032
Energieausweis Art: Bedarf
Balkon/Terrassen - Fläche: 26
WC: 3
Abstellräume: 3
barrierefrei
Neubau
Gäste-WC
Parkett
Bad mit Fenster
Fußbodenheizung
Abstellraum
Freiplatz
Luft-Wärmepumpe
Massiv
Massivbauweise
Wasch-/Trockenraum
Gartennutzung
Satteldach
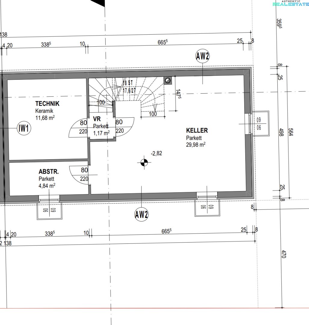
Grundriss Keller
Grundriss Keller
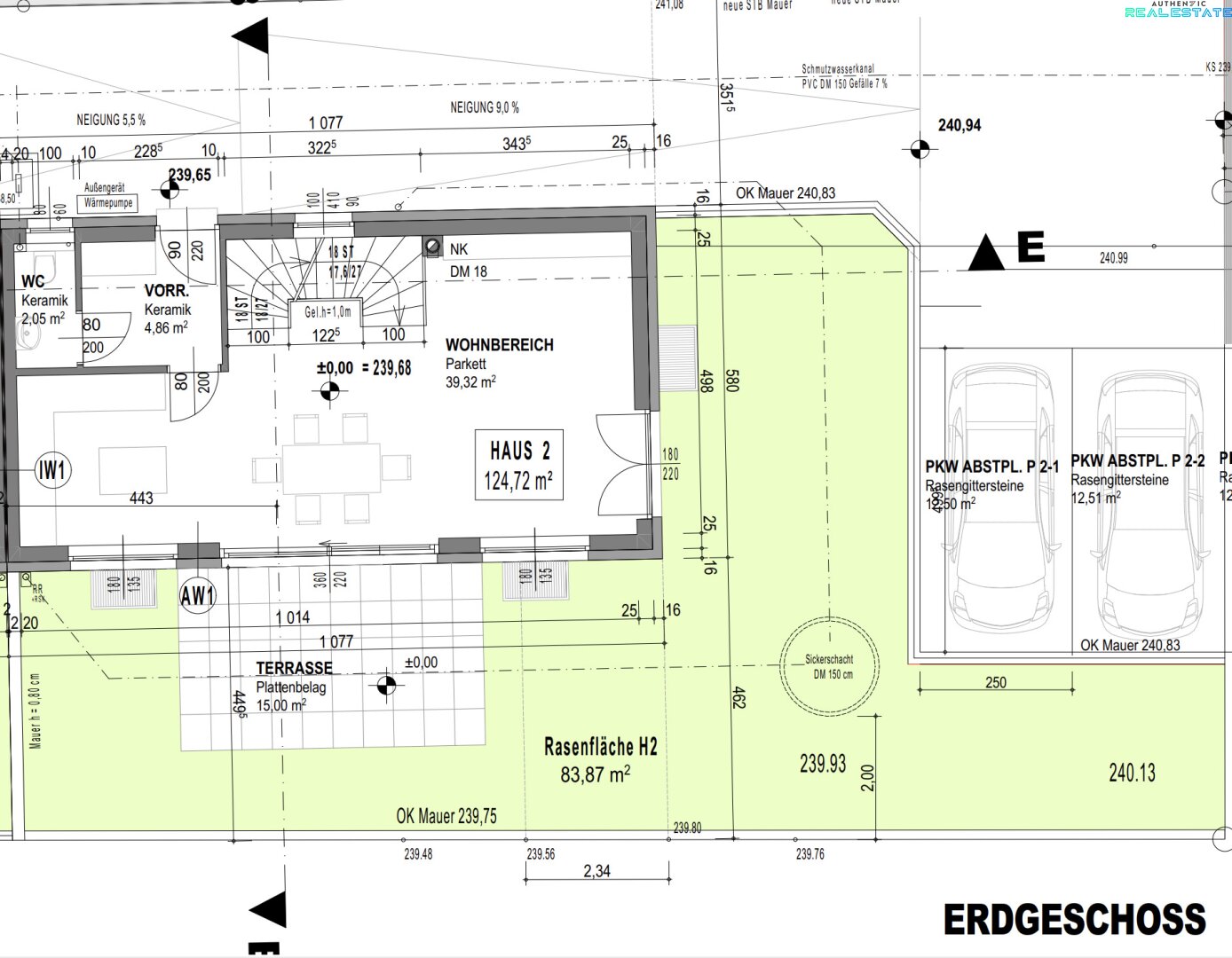
Grundriss EG
Grundriss EG
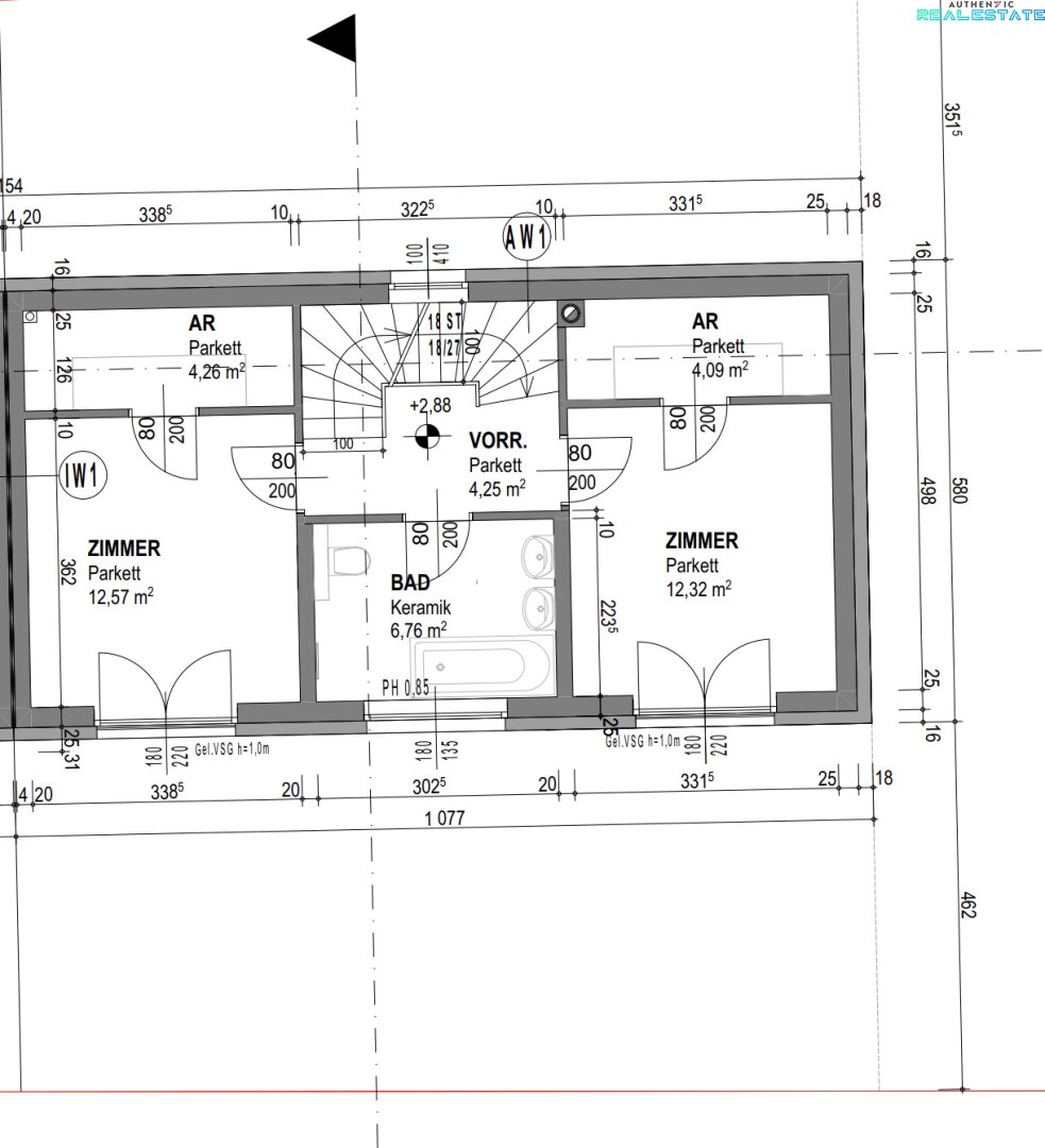
Grundriss OG
Grundriss OG
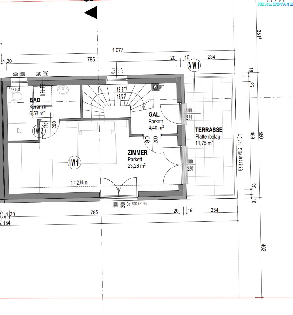
Grundriss DG
Grundriss DG

Ähnliche Objekte

vergleichen
6dX8CuqOB2Ede3SWPYS9ux

Nur noch 3 Häuser verfügbar – Moderne ...

€ 699.000
4
Schlafzimmer
2
Badezimmer
125 m2
Größe
Mai 10, 2026
vergleichen
MEd7X2Izm65nP3uIDuMv5

Traumhaftes Blockhaus in Wien Umgebung mit v...

€ 990.000
4
Schlafzimmer
1
Badezimmer
94 m2
Größe
Mai 8, 2026
vergleichen
2PAiuKyprOha2WoqH6D4dh

Stadtvilla mit parkartigen Garten – 19...

€ 2.780.000
5
Schlafzimmer
3
Badezimmer
219 m2
Größe
Mai 6, 2026

Immo-Company Haas & Urban Immobilien GmbH
Andreas Putz

Kontaktaufnahme









    • Preisinformation
      Objektpreis649.000,00 €

    Vergleichen