Erweiterte Suche
Suchagent aktivieren
Exklusive Anzeigen

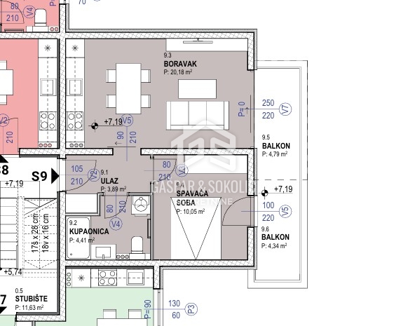
Wohnung Povljana, 44,52m2

€ 193.500,00

,

2 Zimmer
zu Favoriten hinzufügen
teilen
Suchergebnisse

Objektbeschreibung

ID CODE: 295

Bezirk:
PLZ: 23249
Land: Croatia
Objekt ID: 1681381
Preis: € 193.500
Nutzfläche: 0 m2
Gesamtfläche: 0 m2
Ziimmer insgesamt: 2
Schlafzimmer: 2
Badezimmer: 1
Nutzungsart: Wohnen
Provisionspflichtig: ja

Ähnliche Objekte

vergleichen
1749645051 image20 000

Pag, Povljana – Wohnung mit Meerblick,...

€ 213.000
3
Schlafzimmer
1
Badezimmer
April 25, 2026
vergleichen
1749644998 image31

Pag, Povljana – Wohnung mit Meerblick,...

€ 213.000
3
Schlafzimmer
1
Badezimmer
April 25, 2026
vergleichen
1749644916 image20

Pag, Povljana – Wohnung mit Garten und...

€ 230.000
3
Schlafzimmer
1
Badezimmer
April 25, 2026


Hrvoje Sokolić

Kontaktaufnahme









    • Preisinformation
      Objektpreis193.500,00 €

    Vergleichen