Erweiterte Suche
Suchagent aktivieren
Exklusive Anzeigen

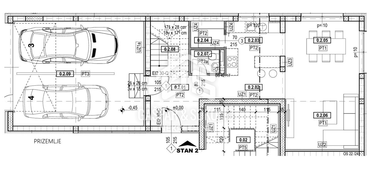
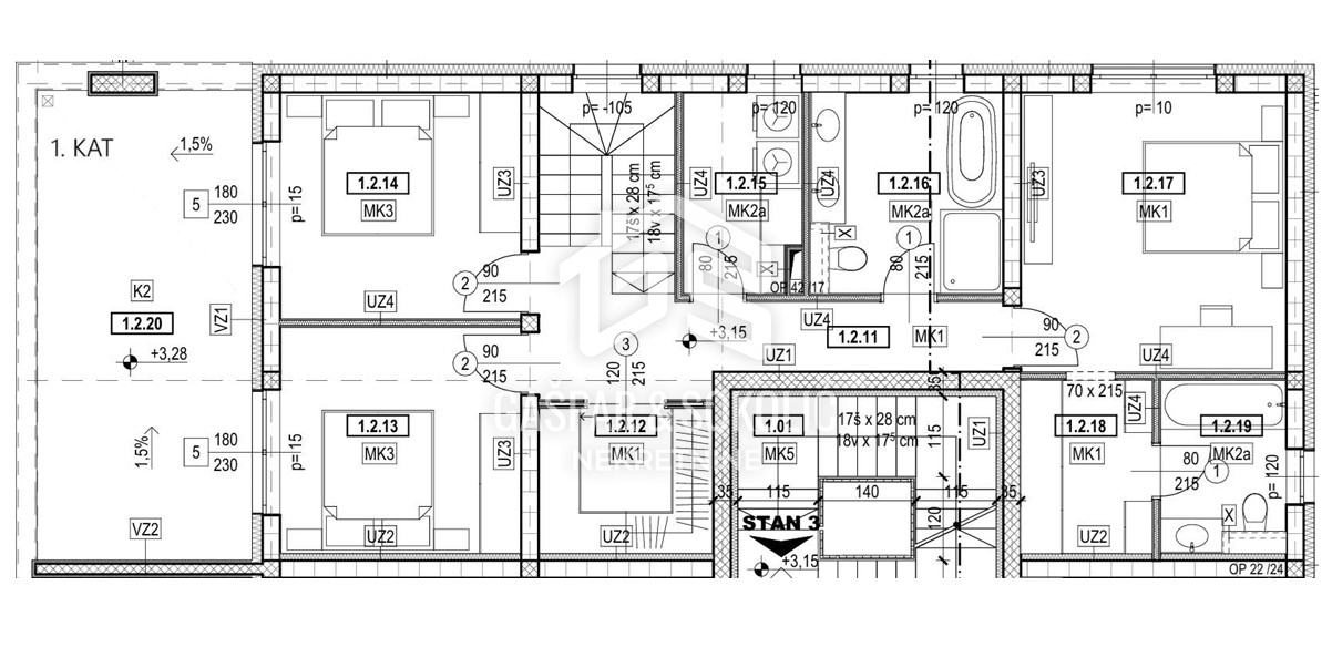
Wohnung Bestovje, Sveta Nedelja, 171m2

€ 428.000,00

,

4 Zimmer
zu Favoriten hinzufügen
teilen
Suchergebnisse

Objektbeschreibung

ID CODE: 268

Bezirk:
PLZ: 10431
Land: Croatia
Objekt ID: 1681670
Preis: € 428.000
Nutzfläche: 0 m2
Gesamtfläche: 0 m2
Ziimmer insgesamt: 4
Schlafzimmer: 4
Badezimmer: 2
Nutzungsart: Wohnen
Provisionspflichtig: ja
WC: 1

Ähnliche Objekte

vergleichen
1749635422 prodaja dvoetazni stan kuca istra 5

Wohnung Županići, Sveta Nedelja, 162,12m2

€ 400.000
5
Schlafzimmer
3
Badezimmer
April 24, 2026
vergleichen
1776760156 snimka zaslona 2026 04 21 102526

Wohnung Bestovje, Sveta Nedelja, 90m2

€ 270.000
4
Schlafzimmer
2
Badezimmer
April 24, 2026
vergleichen
1740885135 1319523972 258960 0

Wohnung Strmec, Sveta Nedelja, 184m2

€ 330.000
5
Schlafzimmer
2
Badezimmer
Januar 23, 2026


Petra Cvitić

Kontaktaufnahme









    • Preisinformation
      Objektpreis428.000,00 €

    Vergleichen