Erweiterte Suche
Suchagent aktivieren
Exklusive Anzeigen

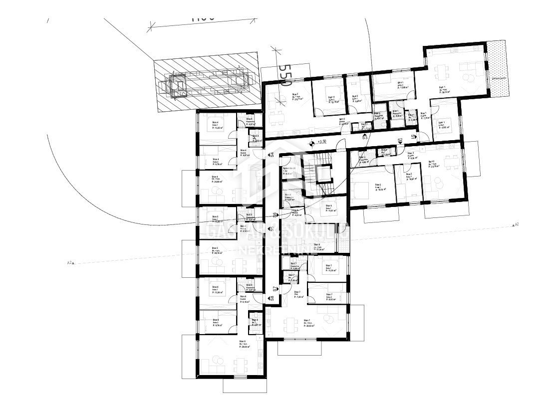
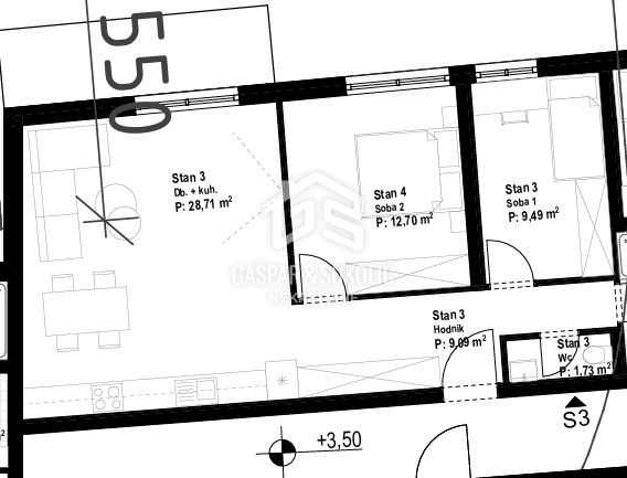
Wohnung Trešnjevka, Trešnjevka – Sjever, 68,79m2

€ 361.148,00

,

3 Zimmer
zu Favoriten hinzufügen
teilen
Suchergebnisse

Objektbeschreibung

ID CODE: 225

Bezirk:
PLZ: 10000
Land: Croatia
Objekt ID: 1681887
Preis: € 361.148
Nutzfläche: 0 m2
Gesamtfläche: 0 m2
Ziimmer insgesamt: 3
Schlafzimmer: 3
Badezimmer: 1
Nutzungsart: Wohnen
Provisionspflichtig: ja
WC: 1

Ähnliche Objekte

vergleichen
1763545287 img 2034

Wohnung Trešnjevka, Trešnjevka – Sjeve...

€ 755.000
3
Schlafzimmer
1
Badezimmer
April 26, 2026
vergleichen
1760422869 img 20251009 153035

Wohnung Trešnjevka, Trešnjevka – Sjeve...

€ 205.000
5
Schlafzimmer
3
Badezimmer
April 26, 2026
vergleichen
1752682408 12

Wohnung Trešnjevka, Trešnjevka – Sjeve...

€ 215.000
3
Schlafzimmer
1
Badezimmer
April 26, 2026


Ante Gašpar

Kontaktaufnahme









    • Preisinformation
      Objektpreis361.148,00 €

    Vergleichen