Objektbeschreibung
Eine wunderschöne Wohnung erwartet die neuen Eigentümer.
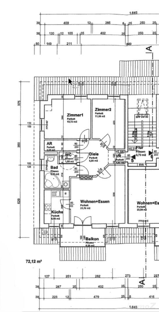
Diese lichtdurchflutete 3-Zimmer-Wohnung mit einer Wohnfläche von 72 m² bietet Komfort und Lebensqualität.
Die Anlage befindet sich in einer ruhigen, stadtnahen Lage von Leibnitz. Geschäfte des täglichen Bedarfs, Bahnhof, Schulen und Restaurants sind in der Nähe und bequem erreichbar.
Die Wohnung erstreckt
Mehr lesen
Objekt ID: 1692402
Preis: € 189.000 pro Monat
Nutzfläche: 72 m2
Gesamtfläche: 0 m2
Ziimmer insgesamt: 3
Schlafzimmer: 3
Badezimmer: 1
Nutzungsart: Wohnen
Provision: 3 % zzgl. 20% MwSt. vom Gesamtkaufpreis
HWB: 56,50 kWh/(m²*a)
HWB Klasse: C
FGEE: 1.03
Balkon/Terrassen - Fläche: 10
Beziehbar: ab sofort
WC: 1
Neubau
Einbauküche
Gas
Parkett
Bad mit Fenster
Zentralheizung
Abstellraum
Carport
vollerschlossen
Keller
Ähnliche Objekte
Leitring: Preissenkung bei einer 3-Zimmer Wo...
€ 148.000 pro Monat
3
Schlafzimmer
1
Badezimmer
81 m2
Größe
April 22, 2026
Preisupdate: Sonnige 3-Zimmer mit Westbalkon...
€ 154.000 pro Monat
3
Schlafzimmer
1
Badezimmer
81 m2
Größe
April 22, 2026
















