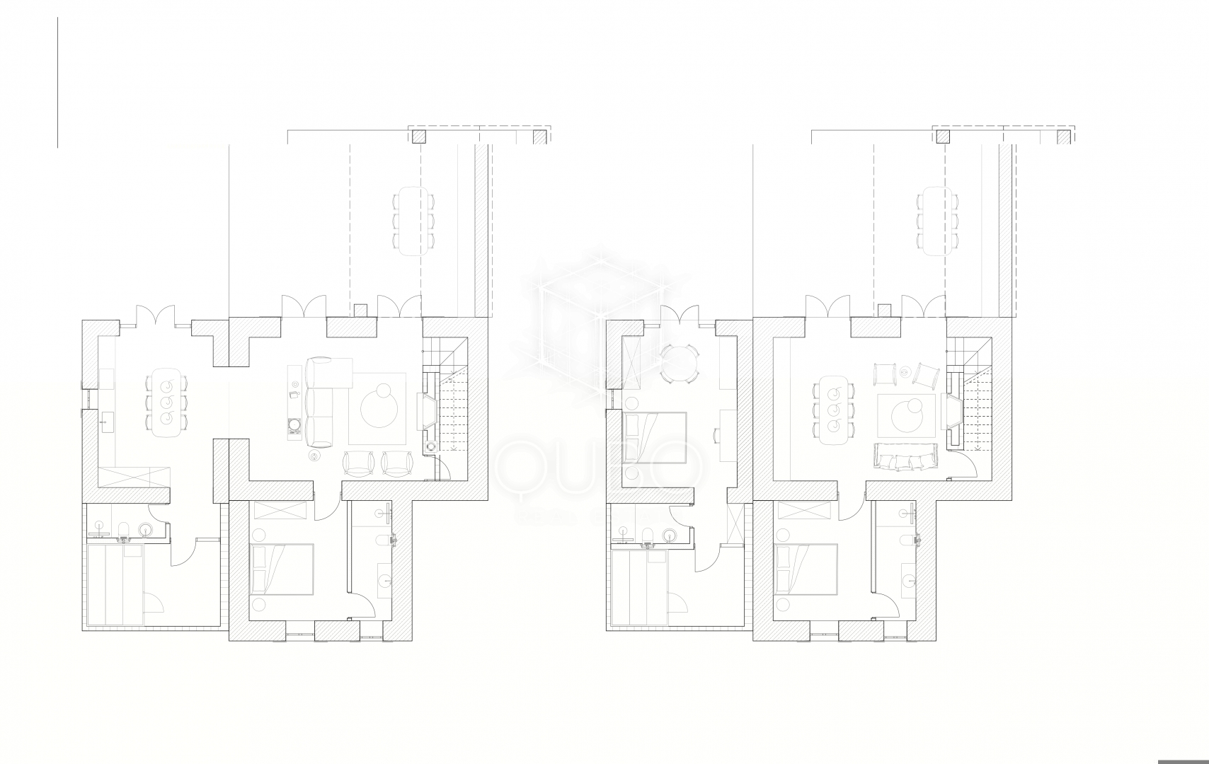
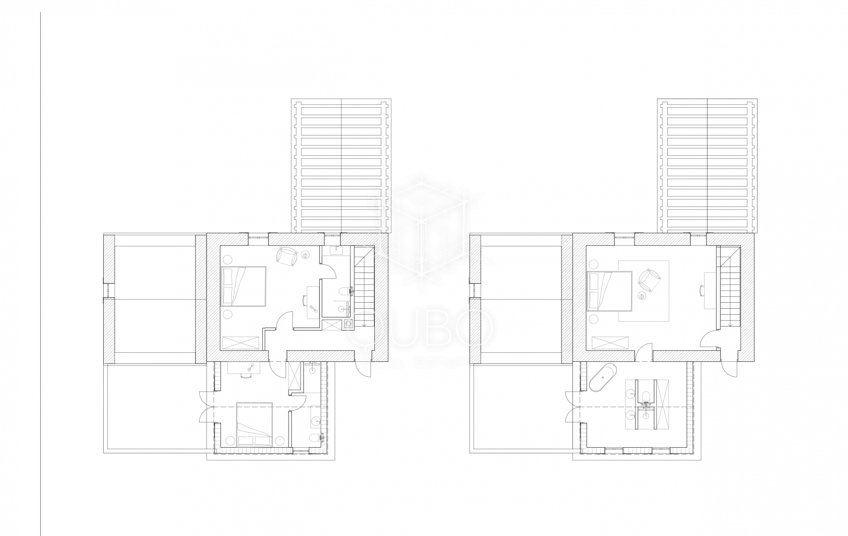
Objektbeschreibung
Im Herzen Istriens, im idyllischen Hinterland des mittelalterlichen Svetvinčenat, befindet sich dieses Steinhaus, das Geschichten aus der Vergangenheit erzählt und zugleich auf ein neues Kapitel wartet.
Das Anwesen umfasst insgesamt 160 m² und besteht aus einem zweigeschossigen Wohnhaus, einer Garage und einem Nebengebäude. Die Fassade und das Erdgeschoss wurden
Mehr lesen
Objekt ID: 1702036
Preis: € 180.000
Nutzfläche: 0 m2
Gesamtfläche: 114 m2
Ziimmer insgesamt: 5
Schlafzimmer: 5
Badezimmer: 2
Nutzungsart: Wohnen
Provisionspflichtig: ja




































