Objektbeschreibung
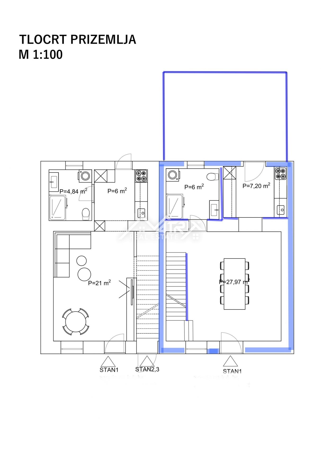
In einer ruhigen Siedlung am Stadtrand von Novigrad bieten wir ein komplett renoviertes und modern ausgestattetes Reihenhaus mit einer Netto-Wohnfläche von 135 m² zum Verkauf an. Die Immobilie ist sofort bezugsfertig oder für die touristische Vermietung geeignet, ohne jegliche zusätzliche Investitionen.
Das Haus erstreckt sich über vier Etagen und bietet
Mehr lesen
Objekt ID: 1702573
Preis: € 430.000
Nutzfläche: 0 m2
Gesamtfläche: 60 m2
Ziimmer insgesamt: 4
Schlafzimmer: 4
Badezimmer: 3
Nutzungsart: Wohnen
Provisionspflichtig: ja





























