Objektbeschreibung
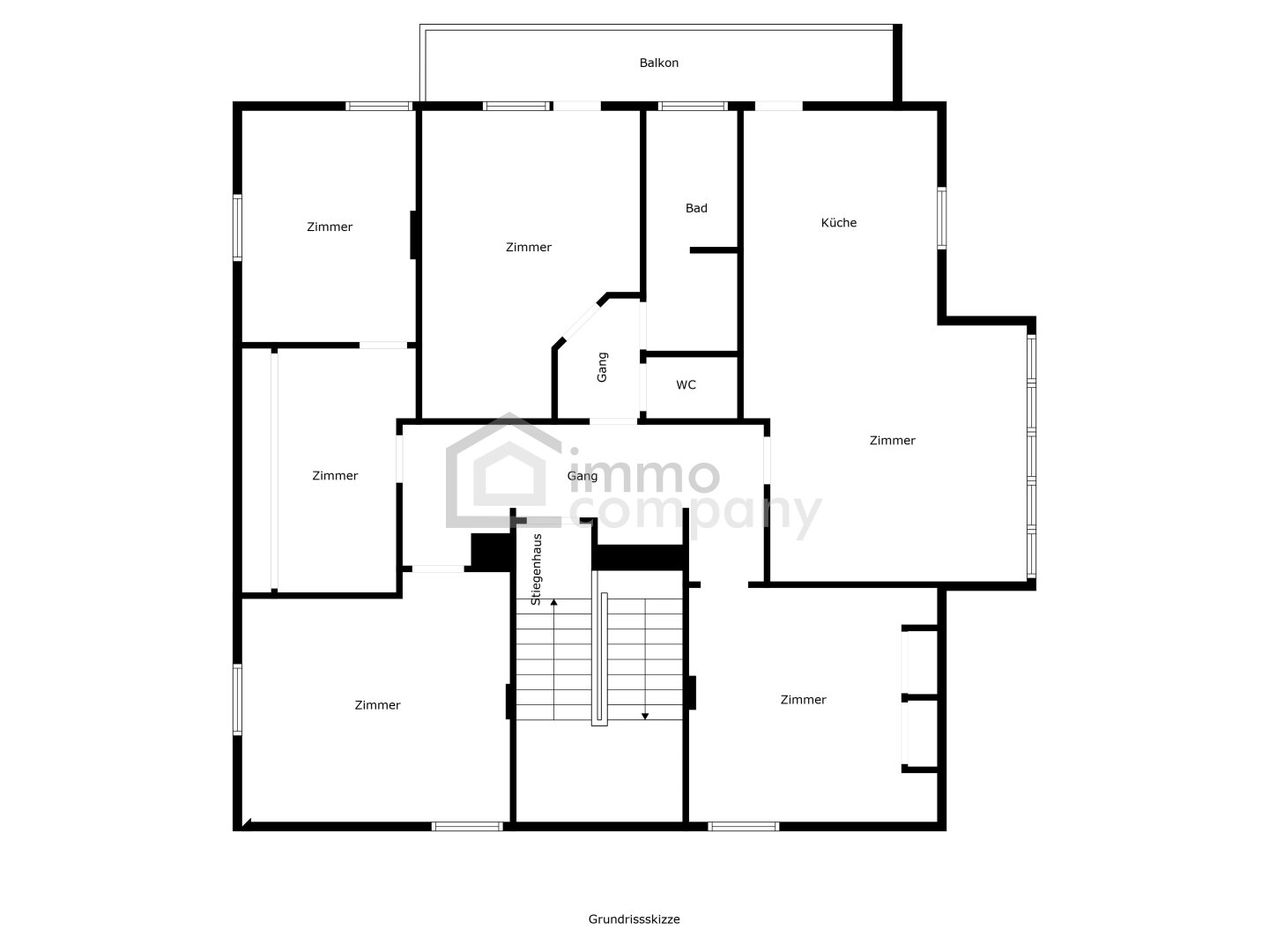
Seltene Gelegenheit für Investoren: großzügiges Zinshaus mit ca. 514 m² vermietbarer Wohnfläche, aktuell leerstehend und sofort neu positionierbar.
Durchschnittliche Mieten in der Region liegen bei ca. € 6,–/m² – mit alternativen Nutzungskonzepten (Monteurwohnungen, möblierte Kurzzeitvermietung) ist ein noch höheres Ertragspotenzial realisierbar.
ECKDATEN
*
Grundstück: ca. 1.088
Mehr lesen
Objekt ID: 1718012
Preis: € 670.000
Nutzfläche: 515 m2
Gesamtfläche: 677 m2
Ziimmer insgesamt: 0
Schlafzimmer: 0
Badezimmer: 14
Miete/m2 €: 989.75
Nutzungsart: Anlage
Provisionspflichtig: ja
Provision: 3% des Kaufpreises zzgl. 20% USt.
HWB: 85 kWh/(m²*a)
HWB Klasse: C
FGEE: 1.09
E-Ausweis Gültig Bis:: 16.09.2035
Energieausweis Art: Bedarf
Anzahl Balkone: 14
Balkon/Terrassen - Fläche: 78
Beziehbar: sofort
WC: 14
Balkon
Fernheizung











