Objektbeschreibung
Duplex Penthouse direkt am Naschmarkt mit traumhaftem Ausblick
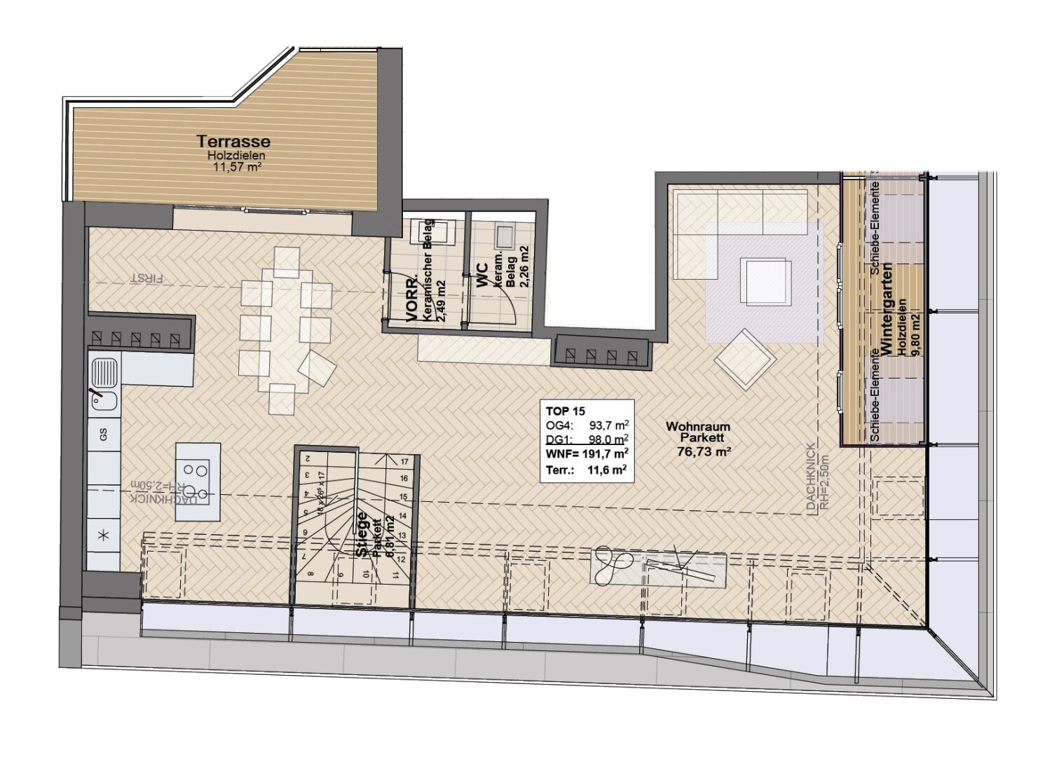
Dieses sonnendurchflutete Duplex-Penthouse befindet sich im ersten und zweiten Dachgeschoss eines wunderschönen Stilaltbauhauses direkt am Naschmarkt, in unmittelbarer Nähe zum Karlsplatz, zur Staatsoper und zum Getreidemarkt.
Die Wohnung teilt sich auf eine Wohnebene mit Küche, Terrasse und Wintergarten und eine Schlafebene mit
Mehr lesen
Objekt ID: 1719288
Preis: € 1.550.000
Nutzfläche: 192 m2
Gesamtfläche: 204 m2
Ziimmer insgesamt: 5
Schlafzimmer: 5
Badezimmer: 2
Miete/m2 €: 7612.97
Nutzungsart: Anlage
Provisionspflichtig: ja
Provision: 3% des Kaufpreises zzgl. 20% USt.
HWB: 39 kWh/(m²*a)
HWB Klasse: B
Energieausweis Art: Bedarf
Balkon/Terrassen - Fläche: 21
Etage: 1. DG / Dachgeschoss
WC: 3
Abstellräume: 1
Neubau
Personenaufzug
Gäste-WC
Gas
Parkett
Badewanne
Fußbodenheizung
offene Küche
Offene Küche
Klimaanlage
Ähnliche Objekte
Anlegerhit oder Eigenheim | Sanierte 2-Zimme...
€ 299.000
2
Schlafzimmer
1
Badezimmer
60 m2
Größe
Mai 10, 2026
Hofseitige Gartenwohnung mit Terrasse I Grün...
€ 360.000
3
Schlafzimmer
1
Badezimmer
59 m2
Größe
Mai 10, 2026

















