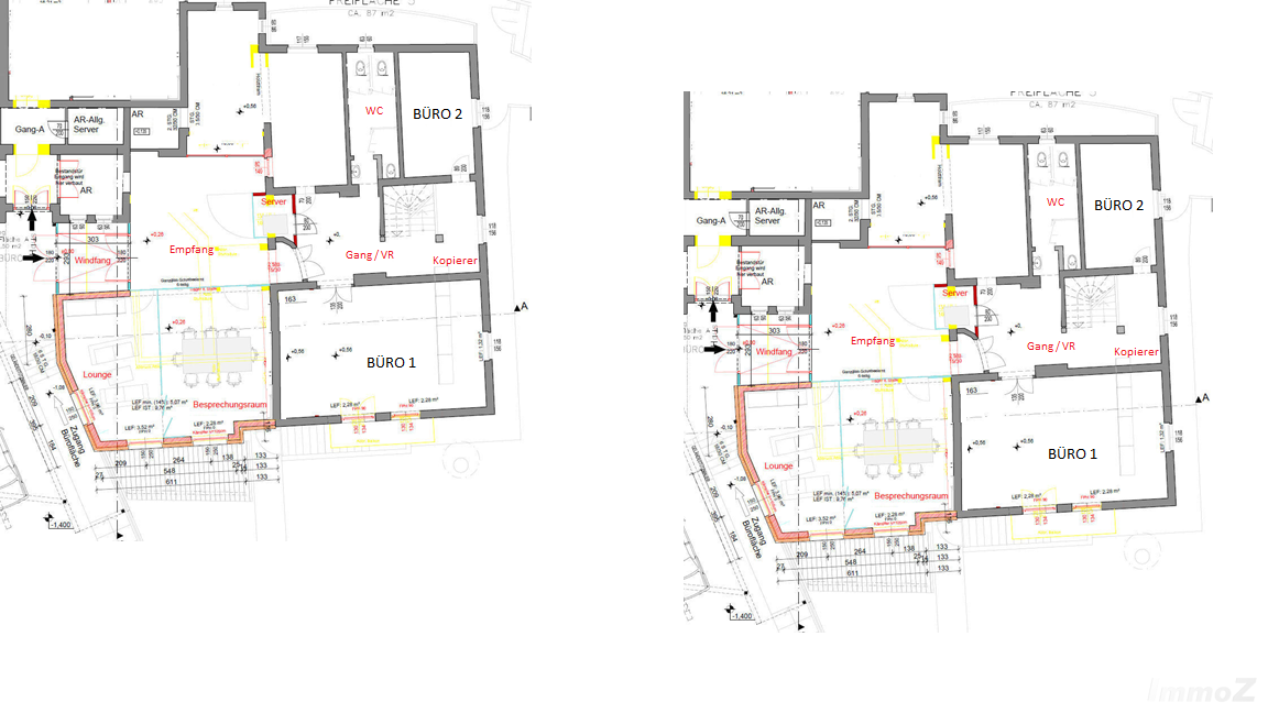
Objektbeschreibung
Büroflächen mit tollem Ambiente und bester Technischer Ausstattung. Sie haben die Möglichkeit eine Rezeption/Empfang und einen Besprechungs.-/Meetingraum zu verwenden, sowie Aufenthalts.- bzw. Treffpunkträume mit Küche. Viele Verwendungsmöglichkeiten des sehr großen Erdgeschosses, mit Garten.
Klimaanlage im OG. Inkl.
Glasfaserkabel, 4 Parkplätze inkl., freie Parkplätze an der Straße, Kindergrippe sowie Öffis 40er
Mehr lesen
Objekt ID: 173123
Nutzfläche: 0 m2
Gesamtfläche: 0 m2
Ziimmer insgesamt: 0
Schlafzimmer: 0
Badezimmer: 0
Nutzungsart: Anlage
Provision: 3 BMM
Kaution: 6 BMM
Beziehbar: ab sofort
Einbauküche
Gas
Fernheizung


















