Objektbeschreibung
3-Zimmer-Wohnung mit Meerblick – Neubau in Bauphase – 400 m zum Strand
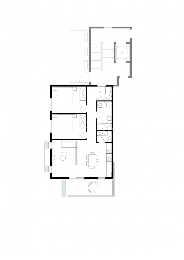
Zum Verkauf steht die Wohnung S14 im 2. Obergeschoss eines modernen Neubauprojekts in Bauphase in Seget Donji, nur 400 m vom Meer und 2 km von Trogir entfernt.
Gesamtfläche: 79,35 m²
Die Wohnung besteht aus:
* Wohn- und
Mehr lesen
Objekt ID: 1734451
Preis: € 265.000
Nutzfläche: 0 m2
Gesamtfläche: 0 m2
Ziimmer insgesamt: 2
Schlafzimmer: 2
Badezimmer: 0
Nutzungsart: Wohnen
Provisionspflichtig: ja
















