Objektbeschreibung
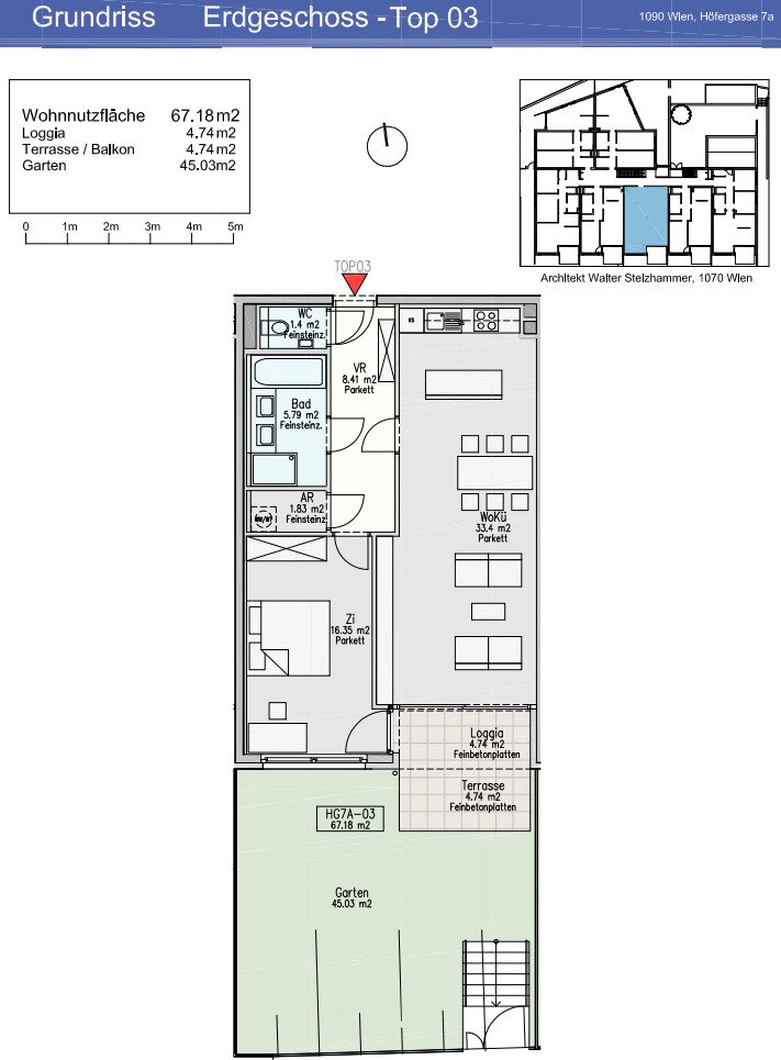
Zur befristeten Vermietung gelangt eine helle, toll aufgeteilte 2-Zimmerwohnung im Erdgeschoss eines sehr gepflegten Neubaus, in absoluter Toplage im 09. Wiener Gemeindebezirk.
Die Wohnung ist komplett hofseitig zum Viktor-Frankl-Park orientiert, Grünblick und Ruhelage inklusive!
  
tolle Raumaufteilung:
 * Vorraum 
 * Badezimmer mit Wanne und Dusche
 * getrenntes WC
 *
Mehr lesen
Objekt ID: 1738036
Preis:  € 1.595 
Nutzfläche: 67 m2
Gesamtfläche: 0 m2
Ziimmer insgesamt: 2
Schlafzimmer: 2
Badezimmer: 1
Miete (netto) €: 1312.28
USt €: 145
Gesamtbelastung €: 1595
Nutzungsart: Wohnen
Provisionspflichtig: nein
Kaution: 3 Bruttomonatsmieten
HWB: 46,30 kWh/(m²*a)
FGEE: 1.25
Energieausweis Art: Bedarf
Balkon/Terrassen - Fläche: 9
Beziehbar: 01.12.2025
Etage: EG
WC: 1
Abstellräume: 1
Neubau
Einbauküche
Personenaufzug
Parkett
Badewanne
Abstellraum
Fernheizung
Ähnliche Objekte
2-Zimmer-Erstbezug mit Loggia und Gartenblic...
 € 880 
2
Schlafzimmer
2
Badezimmer
41 m2
Größe
 November 4, 2025






