Objektbeschreibung
Die Kleingartenanlage liegt am südwestlichen Hang des Gemeindebergs in Ober St. Veit und besticht durch ihre ruhige und sonnige Lage angrenzend an das Karmelitinnenkloster (ehemaliges _Faniteum_) und nur etwa 300 Meter vom St. Veiter Tor – dem Zugang zum Lainzer Tiergarten – entfernt.
Das angebotene Grundstück umfasst nahezu 700 m²
Mehr lesen
Objekt ID: 1743916
Preis: € 740.000
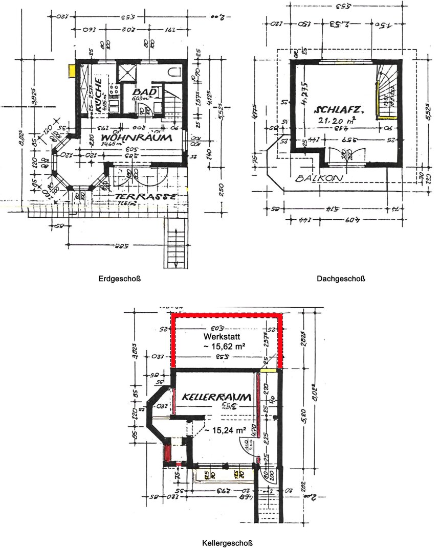
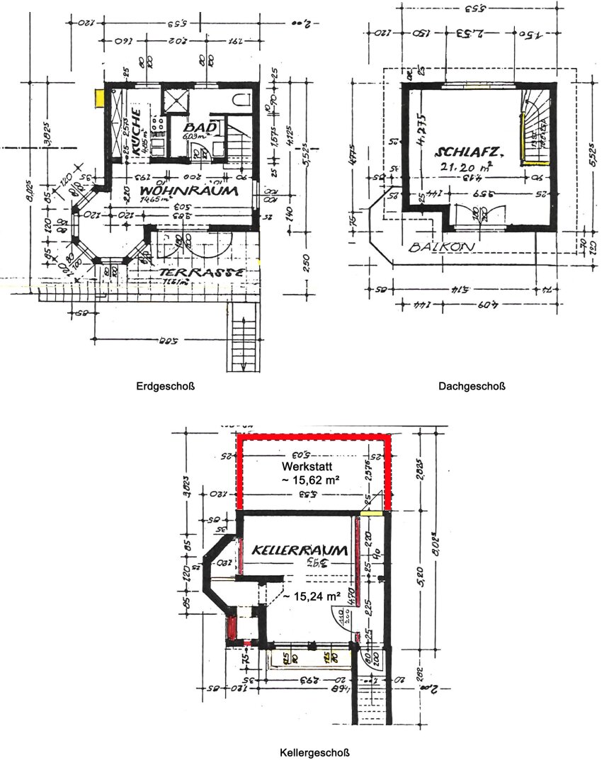
Nutzfläche: 47 m2
Gesamtfläche: 682 m2
Ziimmer insgesamt: 2
Schlafzimmer: 2
Badezimmer: 1
Nutzungsart: Wohnen
Provisionspflichtig: ja
Provision: 3% des Kaufpreises zzgl. 20% USt.
Anzahl Balkone: 1
Balkon/Terrassen - Fläche: 11
Balkon
Neubau
Einbauküche
Fliesen
Bad mit Fenster
Rollläden
Klimaanlage
Massiv
Massivbauweise
vollerschlossen
Elektro
als Ferienimmobilie nutzbar
Ähnliche Objekte
Reihenhaus auf Baurechtsgrund mit Blick auf ...
€ 355.000
3
Schlafzimmer
1
Badezimmer
90 m2
Größe
Mai 10, 2026
1210 Wien, Kleingartengrundstück mit Ferienh...
€ 349.000
3
Schlafzimmer
1
Badezimmer
45 m2
Größe
Mai 10, 2026


















