Erweiterte Suche
Andere Eigenschaften
Suchagent aktivieren
Exklusive Anzeigen

NIEDRIGE MONATLICHE KOSTEN: Geräumiges Einfamilienhaus mit hochwertiger Ausstattung – ERSTBEZUG

€ 569.000,00

,

123.765 Zimmer
zu Favoriten hinzufügen
teilen
Suchergebnisse

Objektbeschreibung

EXKLUSIVER WOHNKOMFORT TRIFFT ENERGIEEFFIZIENZ – ERSTBEZUG IN TRAUMHAFTER RUHELAGE BEI EMPERSDORF

 

Inmitten der idyllischen Hügellandschaft rund um Empersdorf erwartet Sie dieses neu errichtete Einfamilienhaus, das in puncto Ausstattung, Technik und Wohnqualität neue Maßstäbe setzt. Dieses Objekt ist ein wahres Highlight für alle, die modernes, nachhaltiges Wohnen schätzen – und
Mehr lesen

Bezirk:
Bundesland:
PLZ: 8081
Land: Österreich
Objekt ID: 1759473
Preis: € 569.000
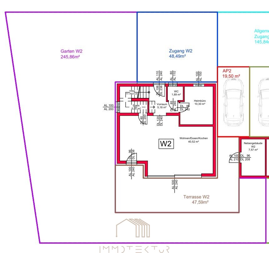
Nutzfläche: 124 m2
Gesamtfläche: 0 m2
Ziimmer insgesamt: 5
Schlafzimmer: 5
Badezimmer: 2
Nutzungsart: Wohnen
Provisionspflichtig: ja
Provision: 3% des Kaufpreises zzgl. 20% USt.
HWB: 48,70 kWh/(m²*a)
HWB Klasse: B
FGEE: 0.61
E-Ausweis Gültig Bis:: 18.07.2032
Energieausweis Art: Bedarf
Balkon/Terrassen - Fläche: 47
WC: 2
Abstellräume: 1
Neubau
Gäste-WC
Parkett
Bad mit Fenster
Fußbodenheizung
offene Küche
Abstellraum
Offene Küche
Klimaanlage
Carport
Luft-Wärmepumpe
Massiv
Massivbauweise
Gartennutzung
Flachdach

Ähnliche Objekte

vergleichen
5jTNdsWln6P4jAxOJUayaD

ERSTBEZUG: Top ausgestattetes Einfamilienhau...

€ 549.000
5
Schlafzimmer
2
Badezimmer
124 m2
Größe
Oktober 16, 2025

Immotektur e.U.
Anela Nuic

Kontaktaufnahme









    • Preisinformation
      Objektpreis569.000,00 €

    Vergleichen