Erweiterte Suche
Suchagent aktivieren
Exklusive Anzeigen

Charmante Wienerwald-Villa in erstklassiger Siedlungslage in Pressbaum

€ 695.000,00

,

1565 Zimmer
zu Favoriten hinzufügen
teilen
Suchergebnisse

Objektbeschreibung

Die um die Jahrhundertwende erbaute und laufend sanierte Wienerwaldvilla, befindet sich in begehrter Siedlungslage unweit des Pressbaumer Zentrums. Massiv erbaut und mit Vollwärmeschutz ausgestattet bietet die heimelige Villa über 155 m² Wohnfläche, verteilt auf drei Etagen. Sie ist sowohl als reine Wohnimmobilie als auch gemischt nutzbar, z.B. als Praxis oder Büro.
Mehr lesen

Bezirk:
Bundesland:
PLZ: 3021
Land: Österreich
Objekt ID: 1774548
Preis: € 695.000
Nutzfläche: 156 m2
Gesamtfläche: 188 m2
Ziimmer insgesamt: 5
Schlafzimmer: 5
Badezimmer: 1
Nutzungsart: Wohnen
Provisionspflichtig: ja
Provision: 3% des Kaufpreises zzgl. 20% USt.
HWB: 93 kWh/(m²*a)
HWB Klasse: C
FGEE: 1.22
E-Ausweis Gültig Bis:: 14.12.2032
Energieausweis Art: Bedarf
WC: 3
Einbauküche
Gäste-WC
Altbau
Gas
Badewanne
Zentralheizung
Klimaanlage
Freiplatz
Massiv
Massivbauweise
vollerschlossen
Dielen
Alarmanlage
DV-Verkabelung
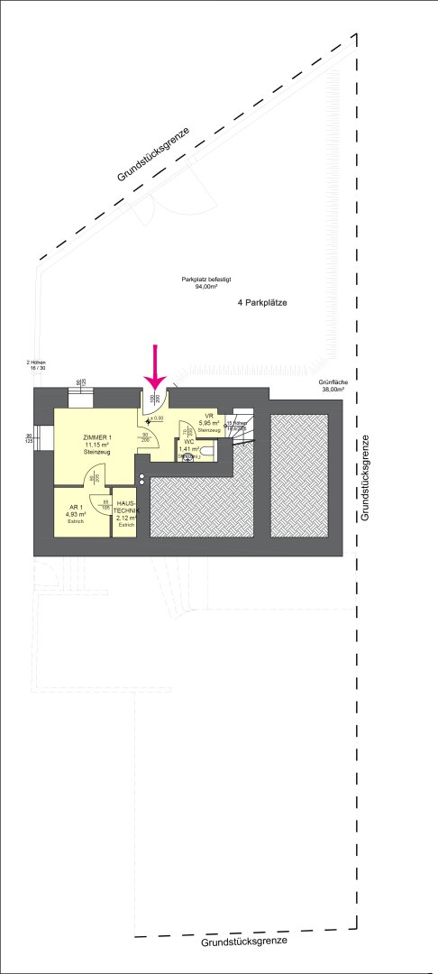
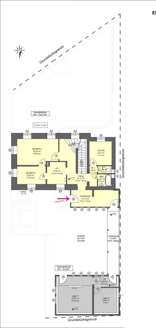
Planskizze Erdgeschoß
Planskizze Erdgeschoß

Ähnliche Objekte

vergleichen
Luftbild gartenseitig

Traumlage Kaiserspitz: Ruhig gelegenes Haus ...

€ 430.000
5
Schlafzimmer
2
Badezimmer
113 m2
Größe
Mai 8, 2026
vergleichen
gartenseitige Hausansicht

Jeder Tag wie Urlaub – Stilvolles Architekte...

€ 2.480.000
5
Schlafzimmer
2
Badezimmer
319 m2
Größe
Mai 8, 2026
vergleichen
Hausansicht mit Carport

Attraktives Einfamilienhaus – ruhig, g...

€ 590.000
4
Schlafzimmer
2
Badezimmer
120 m2
Größe
Mai 4, 2026

Rudi Dräxler Immobilientreuhand GesmbH
​Maximilian Cypris

Kontaktaufnahme









    • Preisinformation
      Objektpreis695.000,00 €

    Vergleichen