Objektbeschreibung
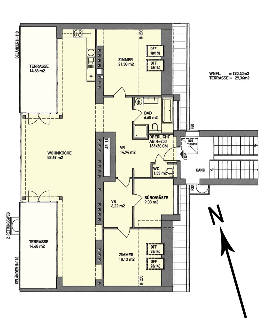
Im Herzen von Meidling, verborgen im ruhigen Hintertrakt eines Wohnhauses aus der späten Gründerzeit, präsentiert sich diese exklusive Dachgeschoß-Wohnung auf 133 m² Wohnfläche. Erreichbar im 4. Obergeschoss mit dem Lift und über einen Halbstock im Stiegenhaus, wurde das Penthouse im Jahre 2005 errichtet und nun 2024/2025 im Zuge einer Generalsanierung modernisiert.
Ein
Mehr lesen
Objekt ID: 1809954
Preis: € 790.000
Nutzfläche: 130 m2
Gesamtfläche: 0 m2
Ziimmer insgesamt: 4
Schlafzimmer: 4
Badezimmer: 1
Betriebskosten €: 279.1
Nutzungsart: Wohnen
Provisionspflichtig: ja
Provision: 3% des Kaufpreises zzgl. 20% USt.
HWB: 82 kWh/(m²*a)
HWB Klasse: C
FGEE: 1.1
E-Ausweis Gültig Bis:: 26.05.2035
Energieausweis Art: Bedarf
Balkon/Terrassen - Fläche: 29
Beziehbar: n.V.
Etage: 1. DG
Neubau
Personenaufzug
Bad mit Fenster
Fußbodenheizung
Kabel/Sat-TV
offene Küche
Offene Küche
Rollläden
Klimaanlage
Massiv
Massivbauweise
vollerschlossen
Dielen
Fernwärme

















