Objektbeschreibung
GARTENWOHNUNG MIT HAUSCHARAKTER IN RUHELAGE – KÜFFELSTRASSE 26, 4030 LINZ
Zwischen Stadt und Natur entsteht in der Küffelstraße 26 ein Neubauprojekt, das Raum für Leichtigkeit, Klarheit und Alltag mit Qualität bietet.
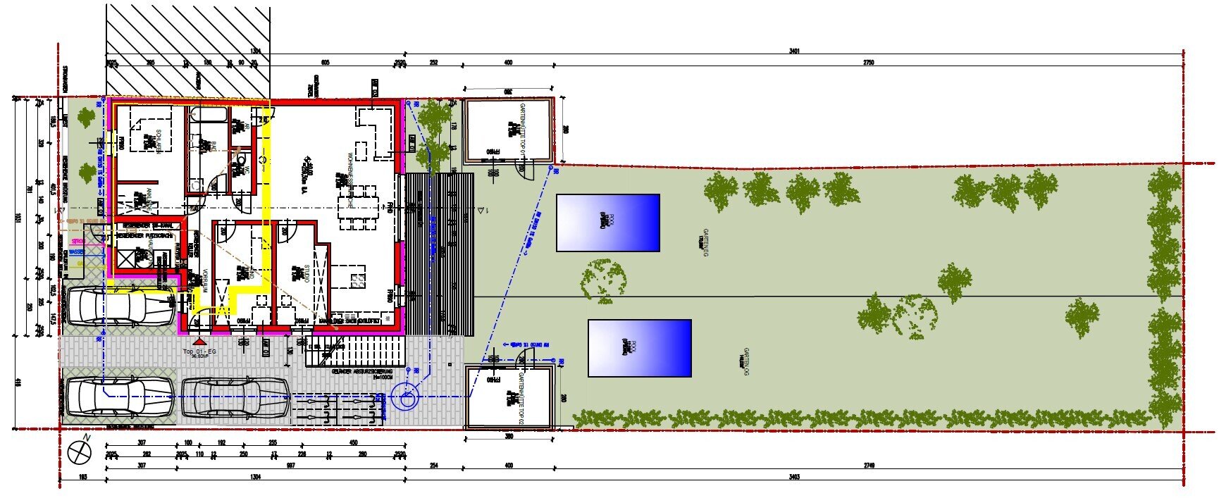
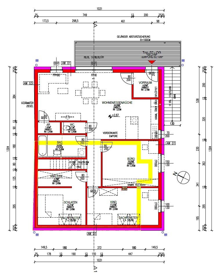
Die Gartenwohnung mit über 159 m² Wohnfläche und großzügigem Privatgarten vereint die Offenheit einer modernen Architektur mit der
Mehr lesen
Dokumente
Objekt ID: 1819713
Preis: € 649.000
Nutzfläche: 159 m2
Gesamtfläche: 636 m2
Ziimmer insgesamt: 5
Schlafzimmer: 5
Badezimmer: 1
Miete/m2 €: 4073.05
Nutzungsart: Wohnen
Provisionspflichtig: ja
Provision: 3% des Kaufpreises zzgl. 20% USt.
HWB: 45 kWh/(m²*a)
HWB Klasse: B
FGEE: 0.9
E-Ausweis Gültig Bis:: 14.04.2034
Energieausweis Art: Bedarf
Beziehbar: 30.06.2026
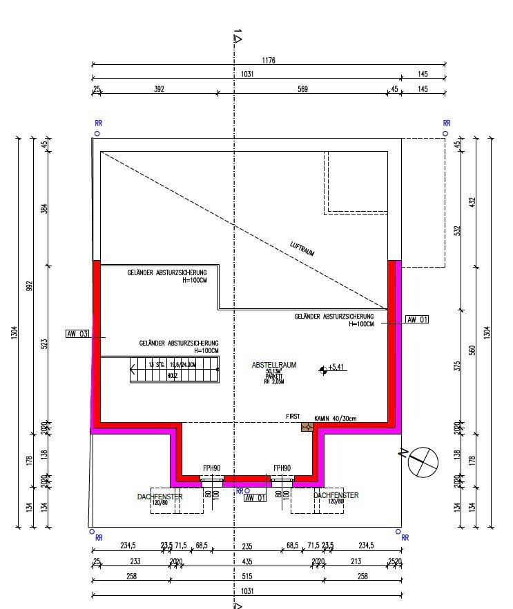
Etage: 1. Etage
WC: 1
Abstellräume: 1
barrierefrei
Neubau
WG-geeignet
Gas
Parkett
Badewanne
Kabel/Sat-TV
Zentralheizung
offene Küche
Offene Küche
rollstuhlgerecht
Freiplatz
Massiv
Massivbauweise
vollerschlossen
Gartennutzung
schlüsselfertig mit Keller
seniorengerecht
Räume veränderbar
Satteldach
Ähnliche Objekte
BAUBEGINN BEREITS ERFOLGT !!! Exklusive Erst...
€ 450.000
4
Schlafzimmer
1
Badezimmer
97 m2
Größe
Dezember 3, 2025



















