Objektbeschreibung
Dieses Geschäftslokal, die ehemalige Blumeninsel, besticht vor allem durch die Top-Lage direkt im Tullnerbacher Ortszentrum an der B44. Zahlreiche Nahversorger (Fleischhauer Ströbel und Billa) sowie sämtliche Infrastruktureinrichtungen wie z.B. Gemeindezentrum, Ärzte und Gastronomiebetriebe sind im nächsten Umkreis vorhanden.
Das Objekt eignet sich zum Beispiel als Büro-, Geschäfts- oder Ladenlokal für
Mehr lesen
Objekt ID: 1828029
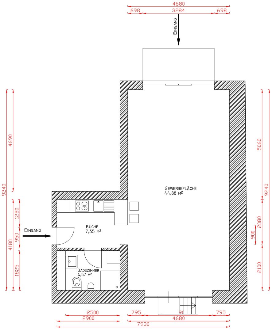
Nutzfläche: 0 m2
Gesamtfläche: 0 m2
Ziimmer insgesamt: 0
Schlafzimmer: 0
Badezimmer: 1
Miete (netto) €: 970
Nutzungsart: Gewerbe
Provisionspflichtig: ja
Kaution: 5.000,00 €
HWB: 157 kWh/(m²*a)
HWB Klasse: E
FGEE: 2.02
E-Ausweis Gültig Bis:: 26.07.2033
Energieausweis Art: Bedarf
Beziehbar: n.V.
Etage: EG
Gas
Fliesen
Fußbodenheizung
Pissoir
Teeküche






