Objektbeschreibung
WOHNEN IM VILLAGE IM DRITTEN
Mit dem VILLAGE IM DRITTEN entsteht in Wien ein neues, lebendiges Stadtquartier mit rund 2.000 Wohnungen, dazu Büro- und Gewerbeflächen, Nahversorgung sowie Kinderbetreuungs- und Bildungseinrichtungen, welches das moderne Wohnen mit viel Grün, Gemeinschaft und nachhaltiger Energieversorgung verbindet.
Das Baufeld 14B mit dem Slogan „Unikat für
Mehr lesen
Dokumente
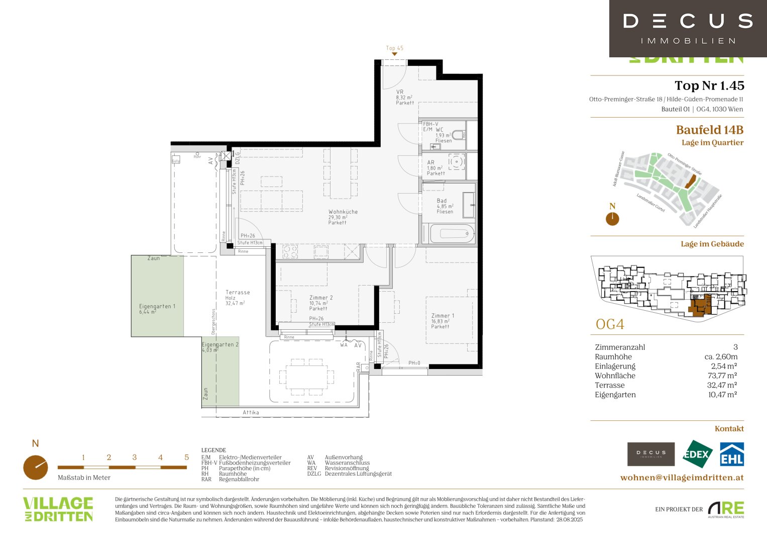
Objekt ID: 1828882
Preis: € 584.000
Nutzfläche: 74 m2
Gesamtfläche: 0 m2
Ziimmer insgesamt: 3
Schlafzimmer: 3
Badezimmer: 1
Nutzungsart: Anlage
Provisionspflichtig: ja
Provision: Die Provision bezahlt der Abgeber.
HWB: 33 kWh/(m²*a)
HWB Klasse: B
FGEE: 0.75
E-Ausweis Gültig Bis:: 14.11.2033
Energieausweis Art: Bedarf
Balkon/Terrassen - Fläche: 32
Beziehbar: voraussichtlich 2027
Etage: 4. Etage / 4. Etage
WC: 1
Abstellräume: 1
Neubau
Einbauküche
Personenaufzug
Parkett
Badewanne
Fußbodenheizung
Kabel/Sat-TV
Fahrradraum
offene Küche
Abstellraum
Offene Küche
Klimaanlage
Fernwärme
Ähnliche Objekte
Hacking I Neubauprojekt I 3 Zimmer mit Terra...
€ 965.000
3
Schlafzimmer
1
Badezimmer
76 m2
Größe
April 2, 2026
Erstbezug I Traumhafte Gartenwohnung Nähe La...
€ 885.000
2
Schlafzimmer
1
Badezimmer
67 m2
Größe
April 2, 2026
Traumhafte Terrassenwohnung im Neubauprojekt...
€ 965.000
3
Schlafzimmer
1
Badezimmer
76 m2
Größe
April 2, 2026



![Traumhafte Terrassenwohnung im Neubauprojekt [A] 7CJnnn9d0tYoYyoKyWWDSX 4](https://gesucht-gefunden.at/wp-content/uploadstorage/2026/03/7CJnnn9d0tYoYyoKyWWDSX-4-525x350.jpg)





