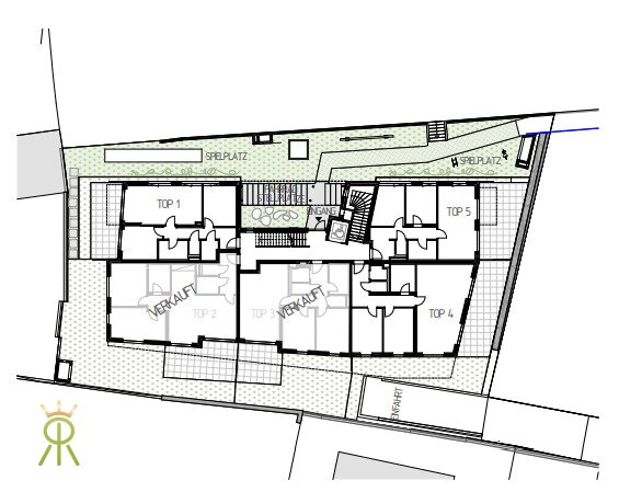
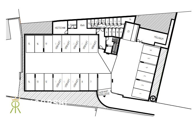
Objektbeschreibung
HERZLICH WILLKOMMEN BEI EINEM NIVEAUVOLLEN PROJEKT IM HERZEN VON BAD VÖSLAU, WELCHES ZWISCHEN HOCHSTRASSE UND HÜGELGASSE ERRICHTET WURDE.
ALLE VERFÜGBAREN WOHNUNGEN IN ÜBERSICHTLICHER FORM FINDEN SIE HIER: WWW.RIBARSKIREAL.ESTATE [https://www.ribarskireal.estate/wohnbauprojekt/12831085?from=459602&page=1]
WOHNEN HEISST: DIE VERBINDUNG SPÜREN.
Erdacht und umgesetzt aus einer über ein Jahrzehnt dauernden, erfolgreichen Geschäftsverbindung eines namhaften Architektenduos mit Sitz
Mehr lesen
Adresse: Hügelgasse 21
Ort: Bad Vöslau
Bezirk: 2540
Bundesland: Niederösterreich
PLZ: 2540
Land: Österreich
Objekt ID: 1841449
Preis: € 387.532
Nutzfläche: 66 m2
Gesamtfläche: 86 m2
Ziimmer insgesamt: 3
Schlafzimmer: 3
Badezimmer: 1
Miete/m2 €: 4508.81
Nutzungsart: Wohnen
Provisionspflichtig: nein
Provision: Provision bezahlt der Abgeber.
HWB: 25,90 kWh/(m²*a)
HWB Klasse: B
FGEE: 0.76
E-Ausweis Gültig Bis:: 29.04.2028
Energieausweis Art: Bedarf
Balkon/Terrassen - Fläche: 19
Beziehbar: 2025
Etage: EG
WC: 1
barrierefrei
Neubau
Personenaufzug
Badewanne
Fernheizung
Tiefgarage
Ähnliche Objekte
PROVISIONSFREI inkl. 1 TG Platz – Wohn...
€ 365.504
3
Schlafzimmer
1
Badezimmer
62 m2
Größe
Februar 12, 2026
PROVISIONSFREI inkl. 2 TG Plätze – Woh...
€ 478.964
2
Schlafzimmer
1
Badezimmer
75 m2
Größe
Februar 12, 2026
PROVISIONSFREI | inklusive Tiefgaragenplatz ...
€ 395.856
2
Schlafzimmer
1
Badezimmer
63 m2
Größe
Februar 12, 2026











