Objektbeschreibung
„DONAU PERLE“ – IHR WOHNTRAUM MIT MEHRWERT
Willkommen in Floridsdorf – hier entsteht ein Zuhause, das weit mehr ist als nur vier Wände. Ein Ort zum Wohlfühlen, Durchatmen und Ankommen. Dieses innovative Neubauprojekt vereint modernen urbanen Lifestyle mit der Ruhe und Schönheit der Natur – eine außergewöhnliche Kombination, die Wohnqualität
Mehr lesen
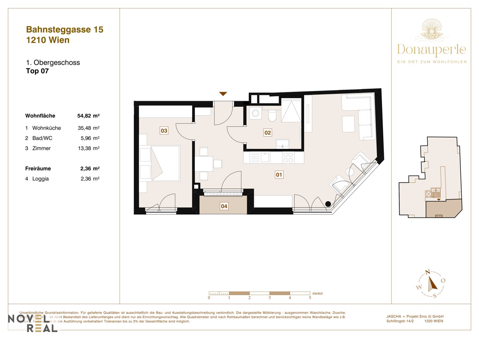
Objekt ID: 1853558
Preis: € 379.000
Nutzfläche: 57 m2
Gesamtfläche: 57 m2
Ziimmer insgesamt: 2
Schlafzimmer: 2
Badezimmer: 1
Nutzungsart: Anlage
Provisionspflichtig: ja
Provision: 3% des Kaufpreises zzgl. 20% USt.
HWB: 27,80 kWh/(m²*a)
HWB Klasse: B
Energieausweis Art: Bedarf
Balkon/Terrassen - Fläche: 2
Etage: 1. Etage
WC: 1
Neubau
Personenaufzug
Parkett
Bad mit Fenster
Fußbodenheizung
Kabel/Sat-TV
Fahrradraum
offene Küche
Offene Küche
Klimaanlage
seniorengerecht
Tiefgarage
Erdwärme
Ähnliche Objekte
Traumhafte Altbauwohnung in bester Lage von ...
€ 250.000
2
Schlafzimmer
1
Badezimmer
40 m2
Größe
Februar 17, 2026
Altbaucharme neu interpretiert – Erstbezug i...
€ 675.000
2
Schlafzimmer
1
Badezimmer
77 m2
Größe
Februar 17, 2026
Geschmackvolles Wohnen in historischem Altba...
€ 699.000
4
Schlafzimmer
2
Badezimmer
133 m2
Größe
Februar 17, 2026




