Objektbeschreibung
TOP 1 – Premium-Einfamilienhaus in Marchtrenk | Das Flaggschiff der Anlage
Ihr exklusives Neubau-Eigenheim mit maximalem Platzangebot
Sichern Sie sich das größte und begehrteste Einfamilienhaus in unserem hochwertigen Neubauprojekt! Als Teil einer sorgfältig geplanten Wohnanlage mit nur 6 Einheiten genießen Sie die perfekte Balance zwischen privatem Wohnen und einer gepflegten
Mehr lesen
Objekt ID: 1856948
Preis: € 440.000
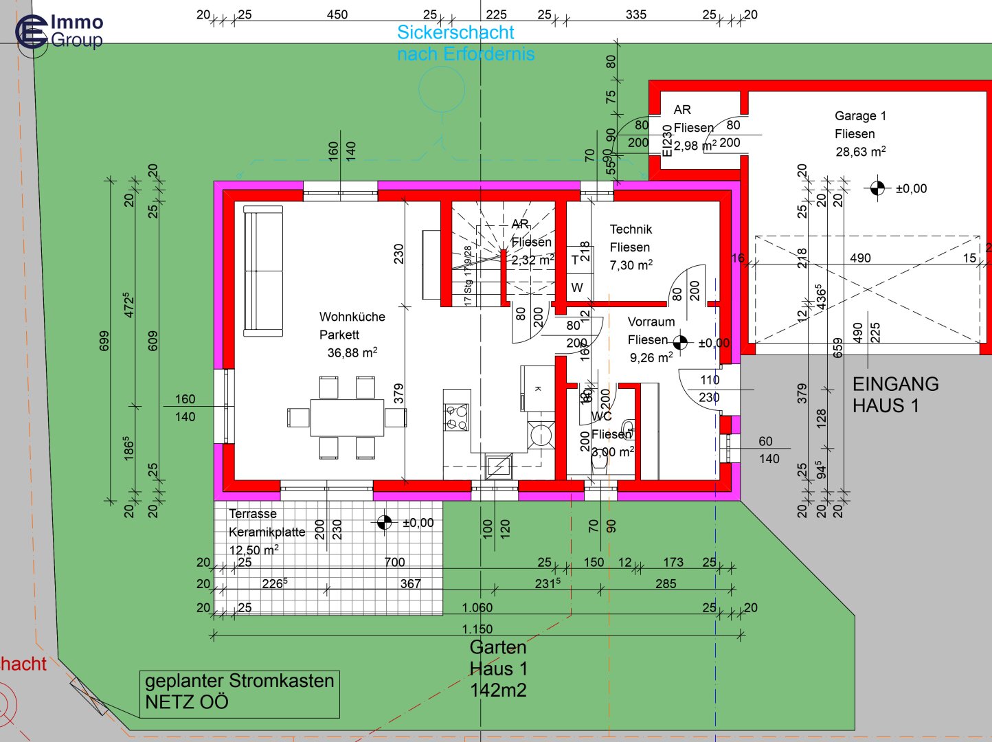
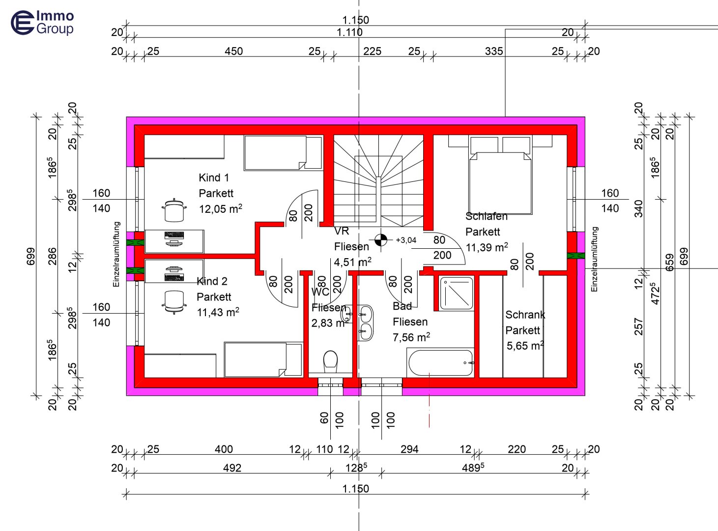
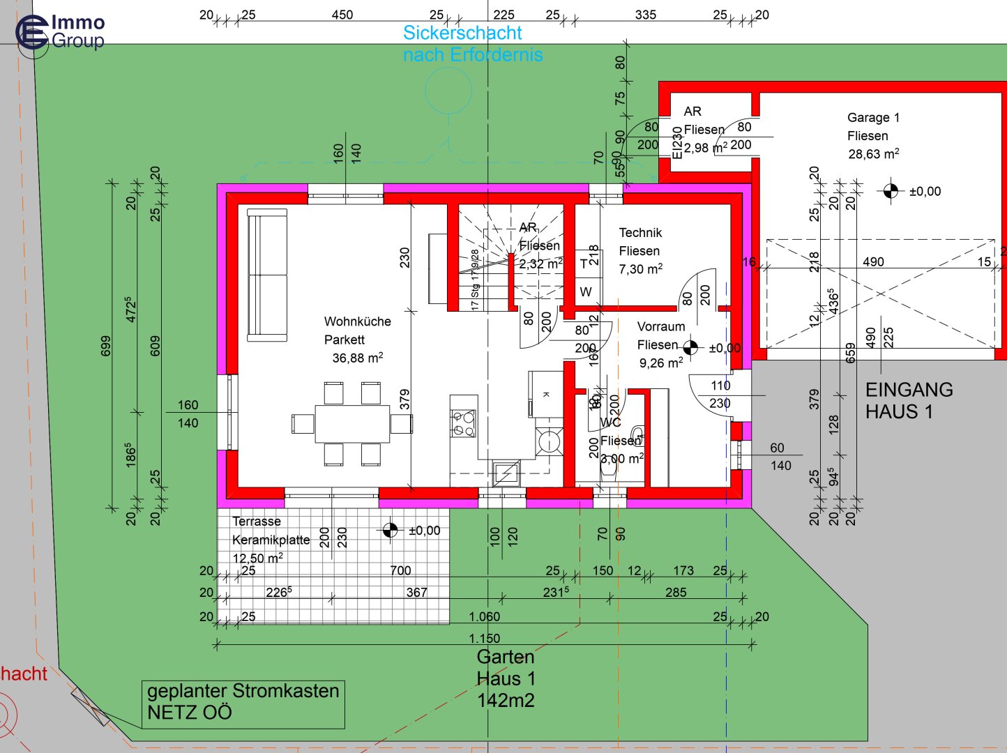
Nutzfläche: 114 m2
Gesamtfläche: 0 m2
Ziimmer insgesamt: 4
Schlafzimmer: 4
Badezimmer: 1
Nutzungsart: Wohnen
Provisionspflichtig: ja
Provision: 3% des Kaufpreises zzgl. 20% USt.
HWB: 40 kWh/(m²*a)
HWB Klasse: B
FGEE: 0.67
E-Ausweis Gültig Bis:: 04.04.2032
Energieausweis Art: Bedarf
Balkon/Terrassen - Fläche: 12
WC: 2
Abstellräume: 2
Neubau
Gäste-WC
Bad mit Fenster
Fußbodenheizung
Freiplatz
Ähnliche Objekte
hammahaus – belagsfertig gebaut | limitierte...
5
Schlafzimmer
2
Badezimmer
133 m2
Größe
Februar 11, 2026
Modernes Doppelhaus für Familien | 113m² + G...
€ 420.000
5
Schlafzimmer
1
Badezimmer
113 m2
Größe
Februar 8, 2026




