Objektbeschreibung
KURZINFORMATION FÜR EILIGE LESER
*
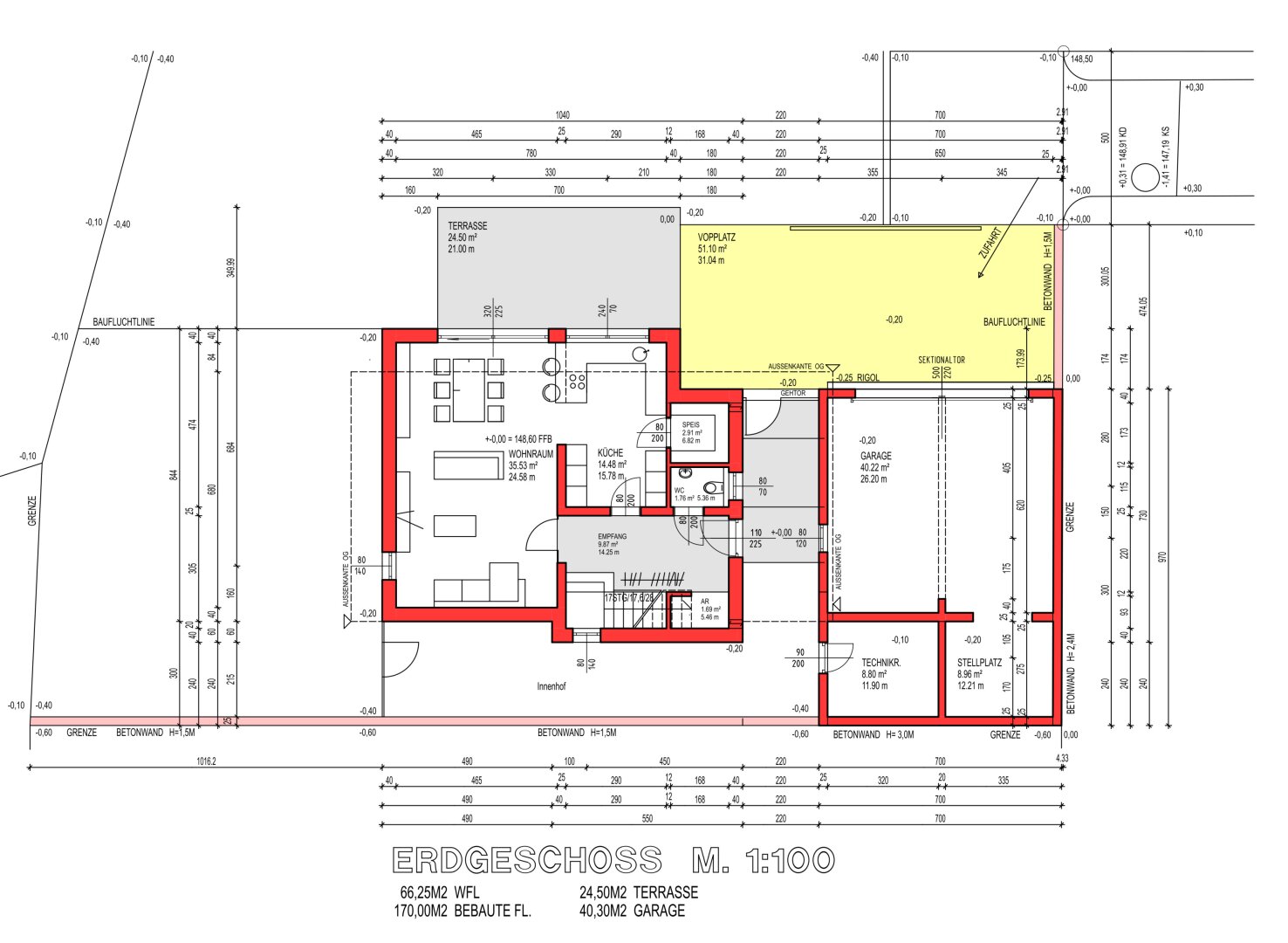
Einfamilienhaus mit ca. 138 m² Wohnnutzfläche
*
Erdgeschoss: großzügiger Vorraum mit Garderobe, WC, Stiegenaufgang, Küche mit Speis & heller Wohn-Essbereich
*
Obergeschoss: offene Galerie bzw. Vorraum mit Nische für Waschmaschine / Trockner, 2 Schlafzimmer, Badezimmer, großzügiger Masterbedroom mit Schlafbereich, Ankleide & eigenem Badezimmer
Dokumente
Objekt ID: 1858280
Preis: € 499.000
Nutzfläche: 138 m2
Gesamtfläche: 642 m2
Ziimmer insgesamt: 4
Schlafzimmer: 4
Badezimmer: 2
Nutzungsart: Wohnen
Provisionspflichtig: ja
Provision: 3% des Kaufpreises zzgl. 20% USt.
HWB: 48 kWh/(m²*a)
HWB Klasse: B
FGEE: 0.66
E-Ausweis Gültig Bis:: 19.03.2034
Energieausweis Art: Bedarf
Anzahl Balkone: 1
Balkon/Terrassen - Fläche: 34
WC: 3
Balkon
Neubau
Fußbodenheizung
Rollläden
Garage
Luft-Wärmepumpe
Massiv
Massivbauweise
Flachdach
Ähnliche Objekte
Liebe auf den ersten Blick in Weikendorf! To...
€ 445.000
4
Schlafzimmer
2
Badezimmer
Dezember 26, 2025
Ruhe, Design & Freiraum – Ihr neues Zuha...
€ 510.000
4
Schlafzimmer
2
Badezimmer
140 m2
Größe
Dezember 26, 2025








