Erweiterte Suche
Suchagent aktivieren
Exklusive Anzeigen

Kernsanierte Eigentumswohnung am Gruschaplatz

€ 339.000,00

,

56.542 Zimmer
zu Favoriten hinzufügen
teilen
Suchergebnisse

Objektbeschreibung

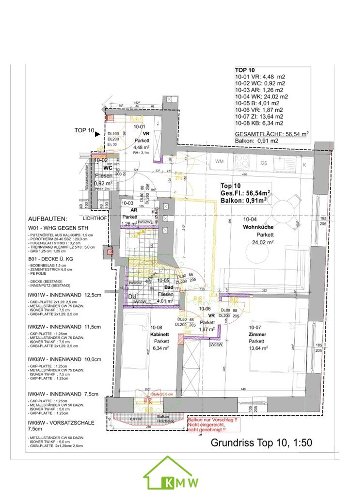
Die kernsanierte Wohnung befindet sich im 1. Obergeschoß,  verfügt über eine Wohnfläche von rund 56m² und verteilt sich auf Vorraum, Abstellraum, separates WC, Bad mit Dusche, möblierte Wohnküche, ein Schlafzimmer sowie ein Kabinett.

Die Wohnung wurde hochwertig saniert und bietet folgende Ausstattung:

* Beheizung über eine moderne Luftwärmepumpe

Mehr lesen

Ort:
Bezirk:
Bundesland:
PLZ: 1140
Land: Österreich
Objekt ID: 1859654
Preis: € 339.000
Nutzfläche: 57 m2
Gesamtfläche: 0 m2
Ziimmer insgesamt: 2
Schlafzimmer: 2
Badezimmer: 1
Nutzungsart: Anlage
Provisionspflichtig: ja
Provision: 3% des Kaufpreises zzgl. 20% USt.
WC: 1

Ähnliche Objekte

vergleichen
PYMF8CrjcWxYafBcmvC4Q9

Anlegerhit oder Eigenheim | Sanierte 2-Zimme...

€ 299.000
2
Schlafzimmer
1
Badezimmer
60 m2
Größe
vergleichen
HK9NHXCYNG23YOYf8zX79

Hofseitige Gartenwohnung mit Terrasse I Grün...

€ 360.000
3
Schlafzimmer
1
Badezimmer
59 m2
Größe
Mai 10, 2026

KMW Immobilien GmbH
Jürgen Heinzl

Kontaktaufnahme









    • Preisinformation
      Objektpreis339.000,00 €

    Vergleichen