Objektbeschreibung
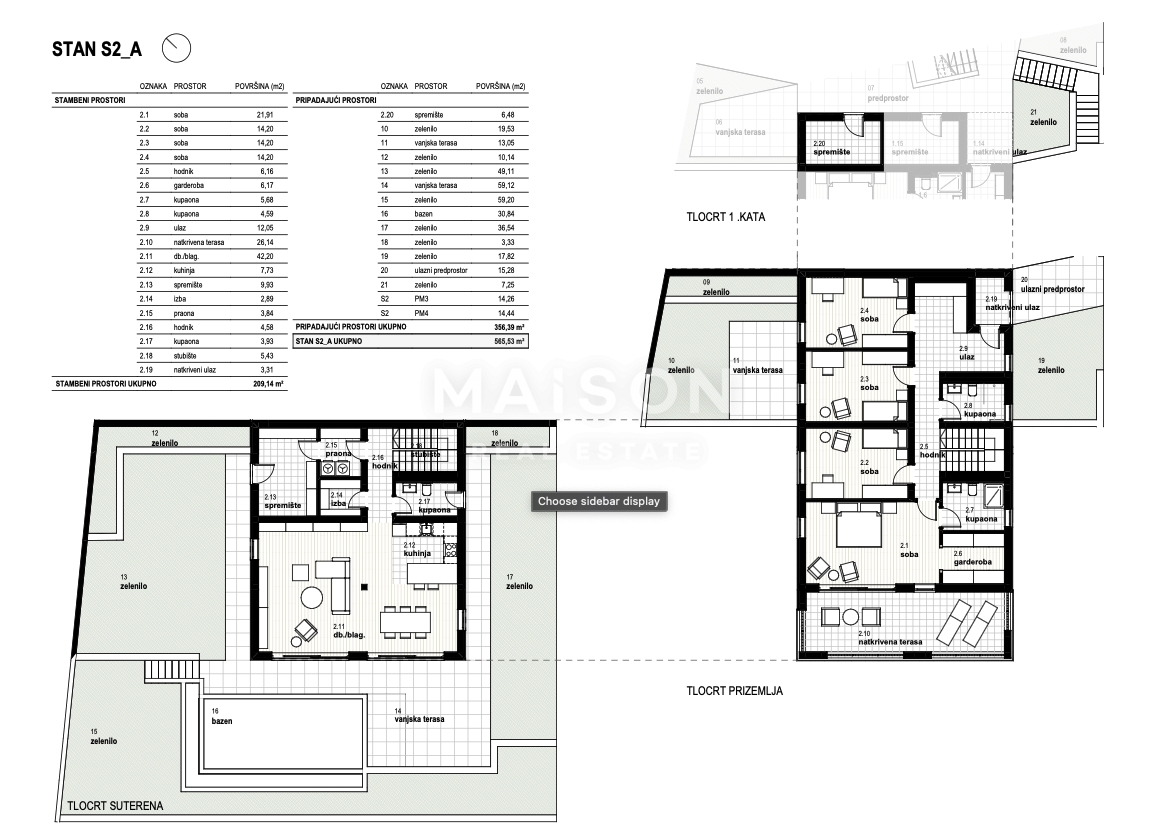
Kostrena Glavani – Wohnung S2-A, 209,14 m²
Im ruhigen, von viel Grün umgebenen Stadtteil Glavani in Kostrena liegt die Wohnung S2-A – Teil eines exklusiven Projekts, das moderne Architektur, erstklassige Bauqualität und den Komfort des Familienlebens vereint. Die großzügige Wohnfläche von 209,14 m² bietet eine perfekte Balance zwischen Funktionalität und
Mehr lesen
Objekt ID: 1873901
Preis: € 850.000
Nutzfläche: 0 m2
Gesamtfläche: 0 m2
Ziimmer insgesamt: 5
Schlafzimmer: 5
Badezimmer: 2
Nutzungsart: Wohnen
Provisionspflichtig: ja
WC: 1









