Objektbeschreibung
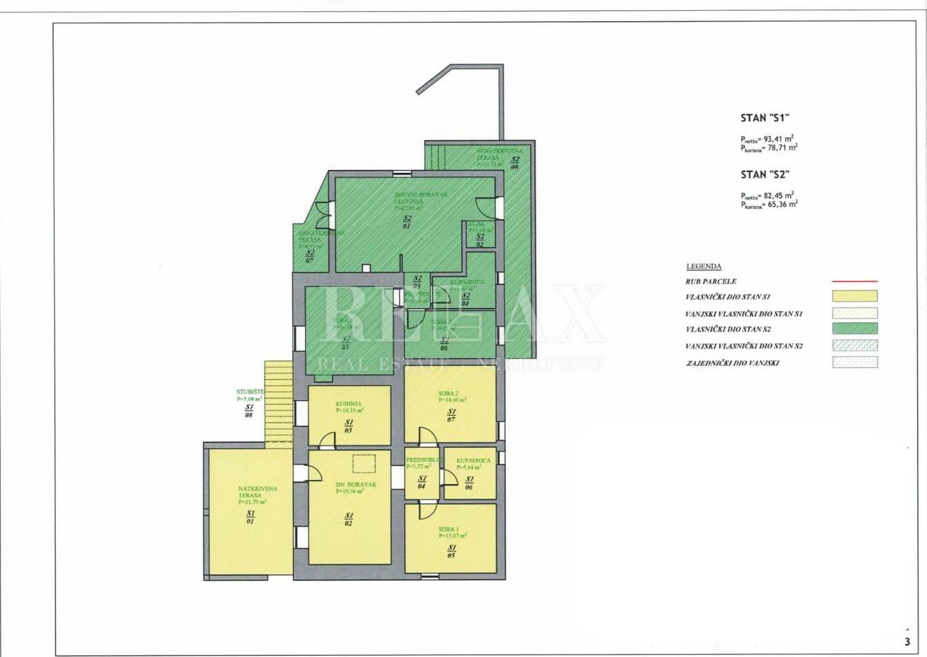
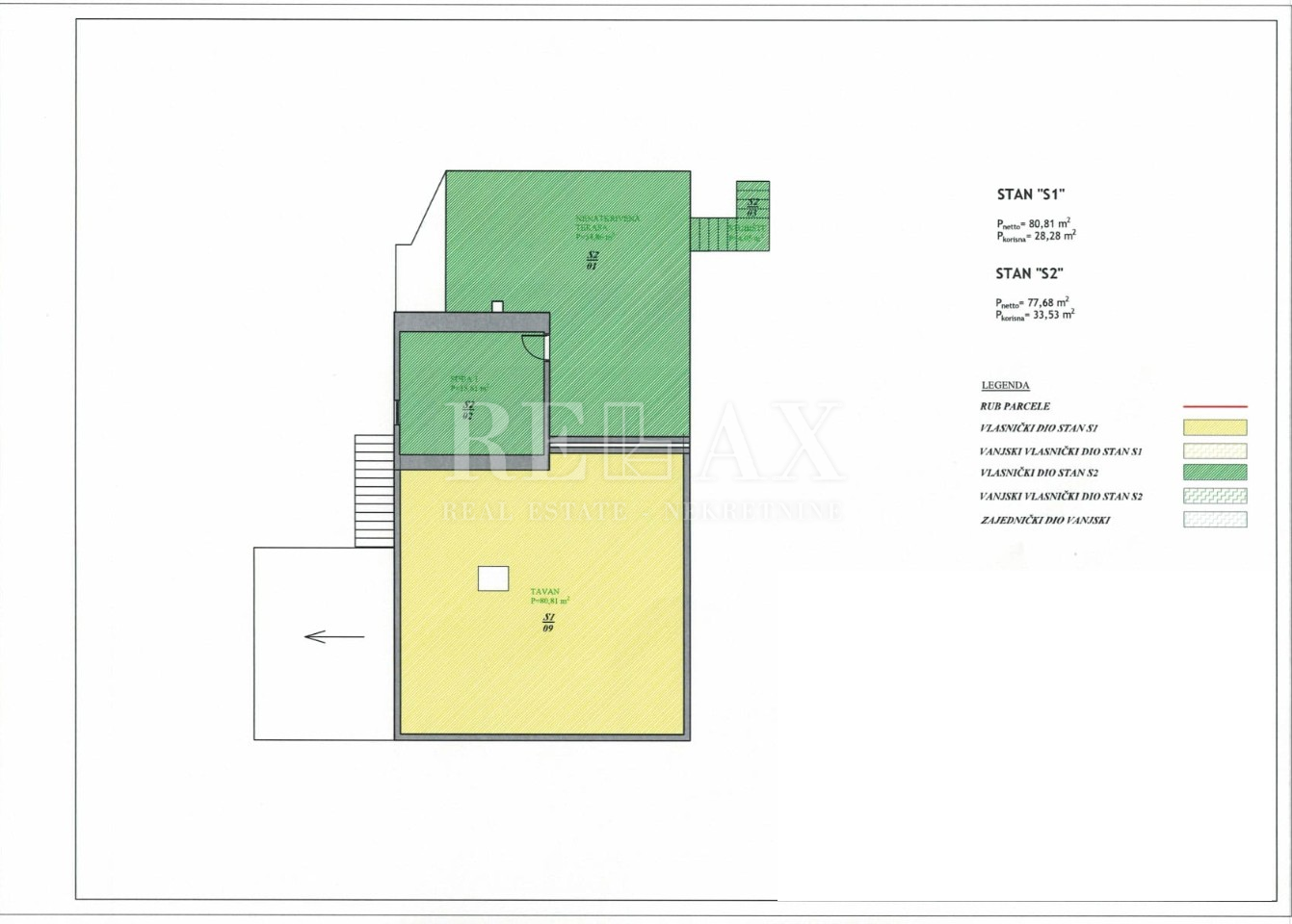
Zum Verkauf steht ein komplett renoviertes und möbliertes Haus in Brseč, in der Nähe von Mošćenička Draga. Die Renovierung wurde dieses Jahr abgeschlossen und umfasste Installationen, Tischlerei, Sanitäranlagen, Boden- und Wandbeläge sowie eine neue Küche und Möbel. Die Immobilie erstreckt sich über drei Etagen – Keller, Erdgeschoss und Dachgeschoss –
Mehr lesen
Objekt ID: 1883371
Preis: € 320.000
Nutzfläche: 0 m2
Gesamtfläche: 170 m2
Ziimmer insgesamt: 4
Schlafzimmer: 4
Badezimmer: 0
Nutzungsart: Wohnen
Provisionspflichtig: ja































