Erweiterte Suche
Suchagent aktivieren
Exklusive Anzeigen

Linzer Straße: Belagsfertiges 134m² Geschäftslokal + 10m² Lager im Neubau-Erstbezug – 1140 Wien

,

zu Favoriten hinzufügen
teilen
Suchergebnisse

Objektbeschreibung

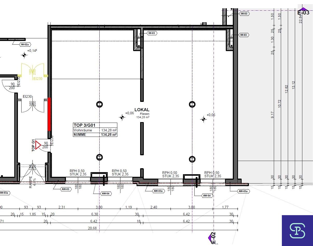
Straßenseitiger 134m² Gewerbe-Erstbezug im Erdgeschoß für Büro, Praxis oder Geschäftslokal!

In diesem soeben neu errichteten Neubauprojekt gelangt diese straßenseitige Gewerbefläche mit 134m² + 10m² Lager zur langfristigen Vermietung. Das Mietobjekt befindet sich im Erdgeschoß, ist mit großen Fensterflächen zur Linzer Straße ausgerichtet und besteht aus 2 großen Räumen (teilbar) und
Mehr lesen

Ort:
Bezirk:
Bundesland:
PLZ: 1140
Land: Österreich
Objekt ID: 1912792
Nutzfläche: 0 m2
Gesamtfläche: 144 m2
Ziimmer insgesamt: 0
Schlafzimmer: 0
Badezimmer: 0
Miete (netto) €: 1400
USt €: 332.57
Nutzungsart: Gewerbe
Provisionspflichtig: ja
HWB: 21,30 kWh/(m²*a)
HWB Klasse: A
FGEE: 0.72
E-Ausweis Gültig Bis:: 22.09.2031
Energieausweis Art: Bedarf
Beziehbar: sofort
Etage: EG / Erdgeschoß
WC: 1
barrierefrei
Neubau
Personenaufzug
Fußbodenheizung
Kabel/Sat-TV
Fahrradraum
Estrich

Ähnliche Objekte

vergleichen
Hausansicht

Nettes Büro – Toplage/U1,U3

1
Schlafzimmer
1
Badezimmer
April 15, 2026
vergleichen
1udANhbAA2qrrqDRgMJ1wM

BÜRO in historischem Denkmal-Haus in Toplage...

2
Schlafzimmer
1
Badezimmer
April 15, 2026

Vergleichen