Objektbeschreibung
In Groß-Enzersdorfer Ruhelage, direkt an der Wiener Stadtgrenze, entstehen auf Eigengrund 4 exklusive Wohneinheiten mit ausgezeichneter Raumaufteilung. Bei der Ausführung wird auf die präzise Verarbeitung hochwertiger Materialien im gleichen Umfang geachtet wie auf die Einhaltung ästhetischer Kriterien, um ein optimales Raumklima zu schaffen. Zu den Stilmitteln eines wohnlichen Ambientes gehört
Mehr lesen
Objekt ID: 1923126
Preis: € 590.000
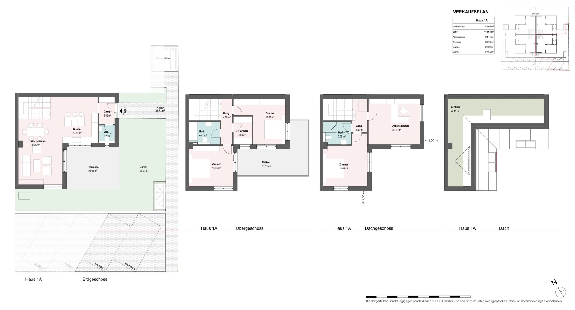
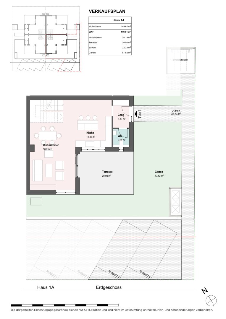
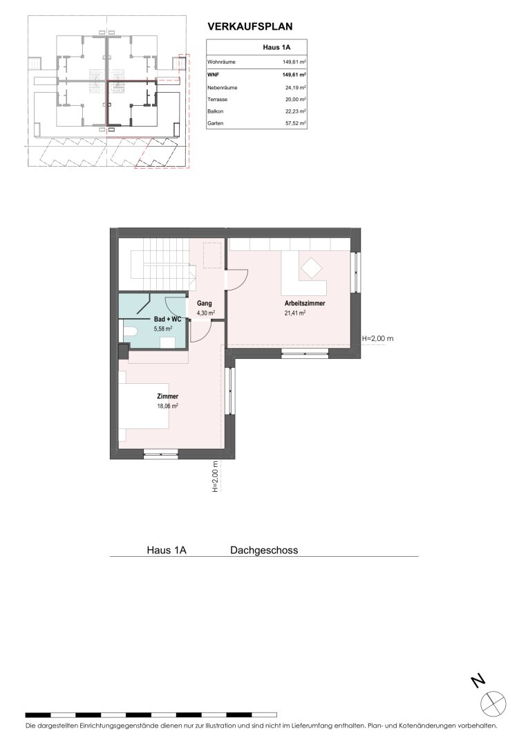
Nutzfläche: 150 m2
Gesamtfläche: 0 m2
Ziimmer insgesamt: 5
Schlafzimmer: 5
Badezimmer: 2
Miete/m2 €: 3943.59
Nutzungsart: Wohnen
Anzahl Balkone: 1
Balkon/Terrassen - Fläche: 42
Beziehbar: Q2 2026
WC: 3
Abstellräume: 1
Balkon
Neubau
WG-geeignet
Gäste-WC
Fußbodenheizung
Kamin
Fahrradraum
Abstellraum
Rollläden
Freiplatz
Luft-Wärmepumpe
Massiv
Massivbauweise
Estrich
Wasch-/Trockenraum
Gartennutzung
Ähnliche Objekte
Charmantes Einfamilienhaus mit Gartenidylle ...
€ 679.000
4
Schlafzimmer
1
Badezimmer
130 m2
Größe
November 15, 2025
Schlüssel drehen & losleben – Stilvolles...
€ 560.000
3
Schlafzimmer
2
Badezimmer
97 m2
Größe
November 5, 2025








