Objektbeschreibung
KANTRIDA RESIDENCE – wir sind stolz, Ihnen einen im Bau befindlichen Luxus-Wohnkomplex präsentieren zu können, der sich in einer erstklassigen, begehrten Lage in Rijeka befindet, wo Eleganz, Komfort und ein spektakulärer Blick auf das Meer vom Erdgeschoss aus vereinen. Dieser exklusive Komplex besteht aus zwei Etagen einer Tiefgarage, die über
Mehr lesen
Objekt ID: 1931614
Preis: € 550.000
Nutzfläche: 0 m2
Gesamtfläche: 0 m2
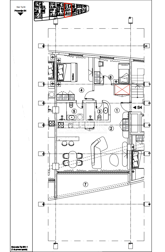
Ziimmer insgesamt: 3
Schlafzimmer: 3
Badezimmer: 2
Nutzungsart: Wohnen
Provisionspflichtig: ja












































