Objektbeschreibung
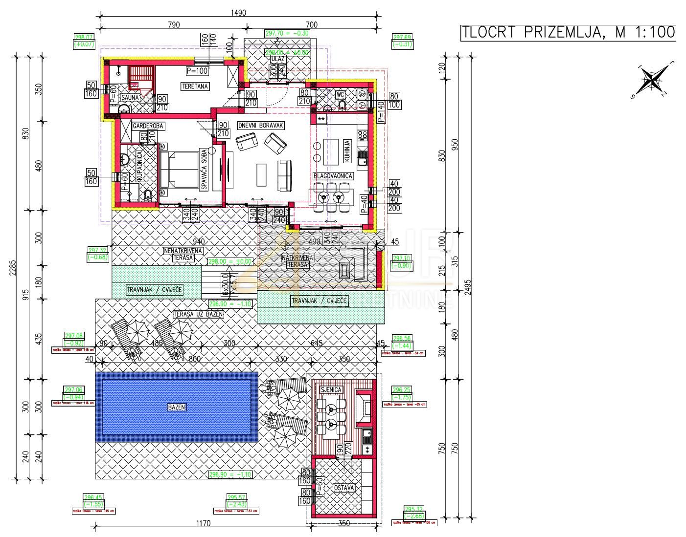
Zum Verkauf steht ein 900 m2 großes Baugrundstück in einem ruhigen Teil Istriens, unweit von Labin, mit einem fertigen Projekt für den Bau einer modernen Villa. Das Grundstück ist leicht geneigt, was eine schöne Aussicht und eine optimale Nutzung des Platzes für den Bau bietet.
Das Projekt umfasst eine
Mehr lesen
Objekt ID: 1933743
Preis: € 61.500
Nutzfläche: 0 m2
Gesamtfläche: 0 m2
Ziimmer insgesamt: 0
Schlafzimmer: 0
Badezimmer: 0
Nutzungsart: Anlage
Provisionspflichtig: ja








