Objektbeschreibung
MODERNES WOHNPROJEKT MIT FREIFLÄCHEN, TOP-AUSSTATTUNG UND ATTRAKTIVEN KAUFKONDITIONEN
In der begehrten Weinbaugemeinde Kirchberg am Wagram entstehen aktuell 52 hochwertige Eigentumswohnungen in Ziegelmassiv-Niedrigenergiebauweise. Zwei moderne Baukörper, verbunden durch ein zentrales Stiegenhaus mit Lift, bieten lichtdurchflutete, durchdacht geschnittene Wohneinheiten für höchste Ansprüche – alle mit Balkon oder Eigengarten.
Diese Wohnanlage wurde mit Fokus
Mehr lesen
Dokumente
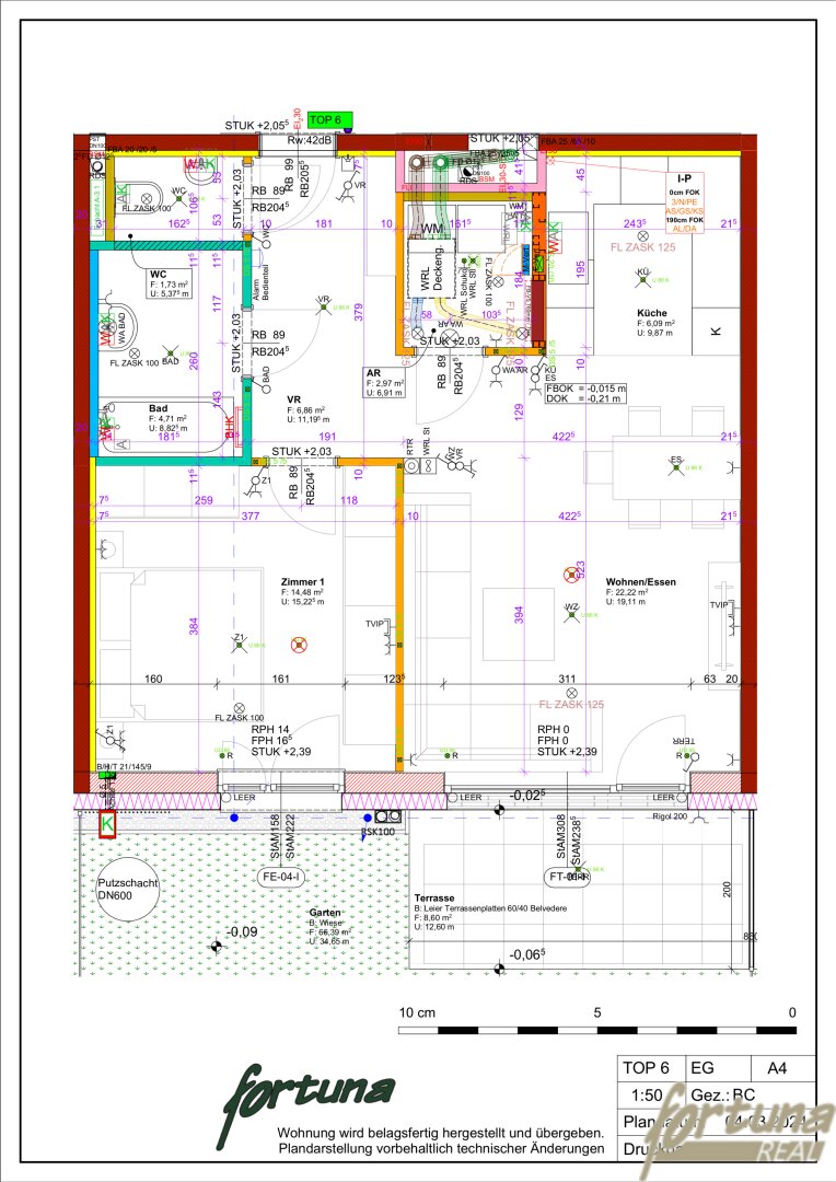
Adresse: Neustifter Straße 6
Ort: Kirchberg am Wagram
Bezirk: 3470
Bundesland: Niederösterreich
PLZ: 3470
Land: Österreich
Objekt ID: 193511
Preis: € 241.552.29
Nutzfläche: 59 m2
Gesamtfläche: 0 m2
Ziimmer insgesamt: 2
Schlafzimmer: 2
Badezimmer: 0
Nutzungsart: Wohnen
Provisionspflichtig: ja
Provision: Provisionsfrei
HWB: 27,10 kWh/(m²*a)
HWB Klasse: B
FGEE: 0.65
Energieausweis Art: Bedarf
Balkon/Terrassen - Fläche: 8
Beziehbar: Herbst/Winter 2025
Etage: EG
barrierefrei
Neubau
Ähnliche Objekte
Gepflegte Eigentumswohnung mit überdachtem B...
€ 180.000
2
Schlafzimmer
1
Badezimmer
52 m2
Größe
April 24, 2026


















