Objektbeschreibung
Liebe Wohnungssuchende!
Bitte um Kontaktaufnahme über das Kontaktformular: [https://www.sulek.immobilien/besichtigung] www.sulek.immobilien/besichtigung [https://www.sulek.immobilien/besichtigung] (bitte Herrn Renner auswählen!).
Herzlichen Dank!
————————-
GEBÄUDE & PROJEKT.
Grünblick – Ihr neues Zuhause im Viertel Zwei:
Willkommen in Wiens grünster Wohnadresse: Direkt am Grünen Prater und nur 15 Minuten mit der U2 vom Stadtzentrum entfernt, entsteht mit Grünblick ein
Mehr lesen
Dokumente
Objekt ID: 1939918
Preis: € 1.750.49
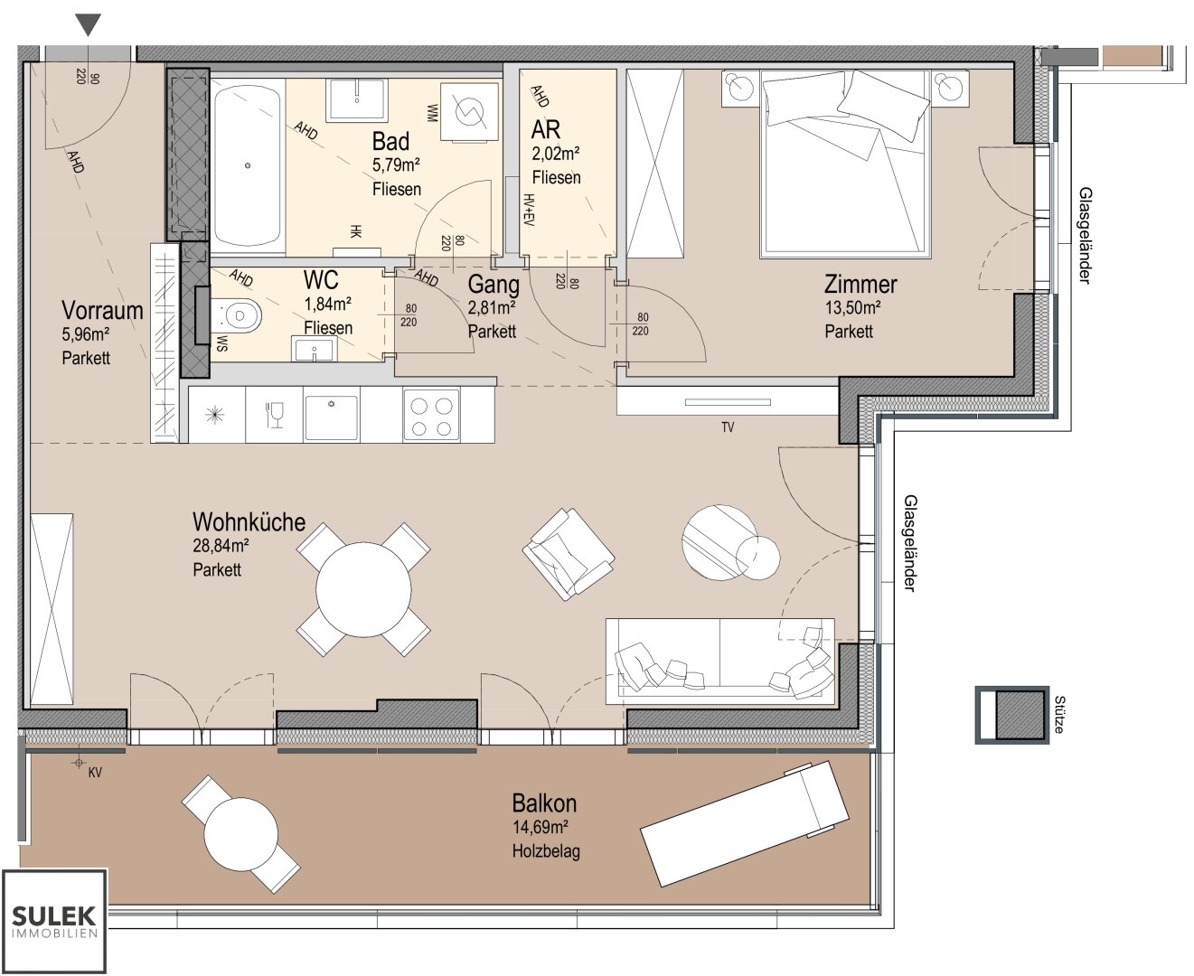
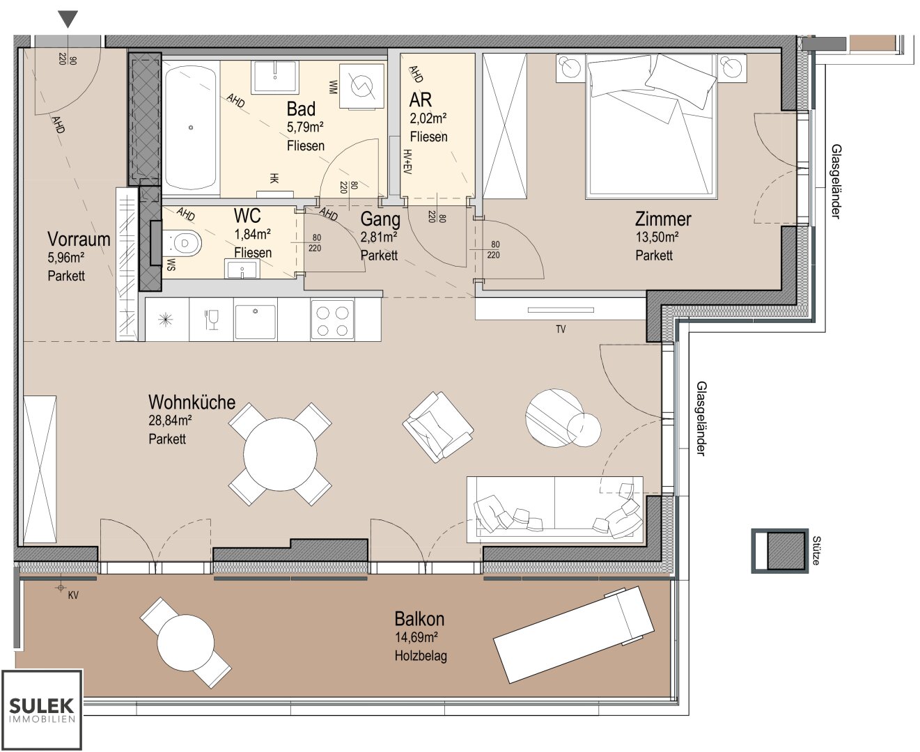
Nutzfläche: 61 m2
Gesamtfläche: 61 m2
Ziimmer insgesamt: 2
Schlafzimmer: 2
Badezimmer: 1
Miete/m2 €: 22
Miete (netto) €: 1336.72
USt €: 159.13
Gesamtbelastung €: 1750.49
Nutzungsart: Wohnen
Provisionspflichtig: nein
Kaution: 5.251,47 €
HWB: 21,80 kWh/(m²*a)
HWB Klasse: A
FGEE: 0.72
E-Ausweis Gültig Bis:: 26.03.2030
Energieausweis Art: Bedarf
Anzahl Balkone: 1
Balkon/Terrassen - Fläche: 14
Beziehbar: sofort
Etage: 7. Etage
WC: 1
Abstellräume: 1
Balkon
Neubau
Einbauküche
Personenaufzug
Parkett
Badewanne
Fußbodenheizung
Kabel/Sat-TV
Fahrradraum
offene Küche
Abstellraum
Offene Küche
Klimaanlage
Swimmingpool
Kamera
Sauna
Tiefgarage
Wellnessbereich
Ähnliche Objekte
Wunderschöne 2 Zimmer Dachgeschoß-Wohnung im...
€ 1.100
2
Schlafzimmer
1
Badezimmer
70 m2
Größe
Mai 10, 2026
RUHIGE GARTENWOHNUNG // ARCHITEKTENHAUS // D...
€ 945
2
Schlafzimmer
1
Badezimmer
52 m2
Größe
Mai 10, 2026
Wunderschöne Wohnung mit Terrasse – U6...
€ 1.605.38
3
Schlafzimmer
1
Badezimmer
72 m2
Größe
Mai 10, 2026































