Objektbeschreibung
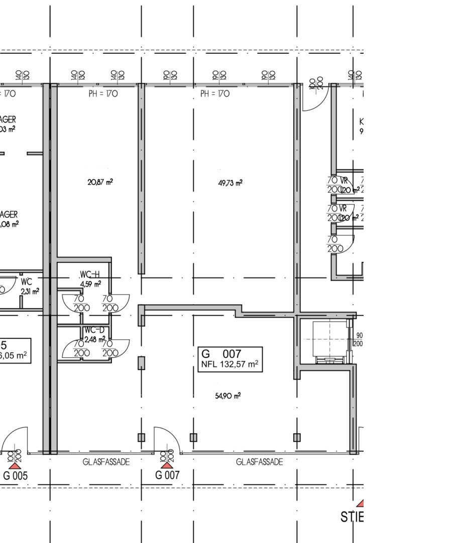
Wir freuen uns, Ihnen eine außergewöhnliche Gelegenheit in einer begehrten Lage Klagenfurts anzubieten. Die zentral gelegenen Räumlichkeiten bieten aufgrund der vorhandenen Parkplätze eine optimale Erreichbarkeit. Durch den barrierefreien Zugang und eine Fläche von 132 Quadratmetern ermöglicht diese Immobilie eine Nutzung im Rahmen verschiedener Geschäftsmodelle wie zum Beispiel als Praxis, Büro
Mehr lesen
Objekt ID: 1942097
Preis: € 149.500
Nutzfläche: 0 m2
Gesamtfläche: 132 m2
Ziimmer insgesamt: 0
Schlafzimmer: 0
Badezimmer: 0
Miete/m2 €: 1132.58
Nutzungsart: Anlage
Provisionspflichtig: ja
Provision: 3% des Kaufpreises zzgl. 20% USt.
Etage: EG
WC: 2
barrierefrei








