Erweiterte Suche
Andere Eigenschaften
Suchagent aktivieren
Exklusive Anzeigen

Sonnige Wohlfühloase mit Balkon, Garten inkl. Sauna sowie 2 Autoabstellplätze in Axams

€ 369.000,00

,

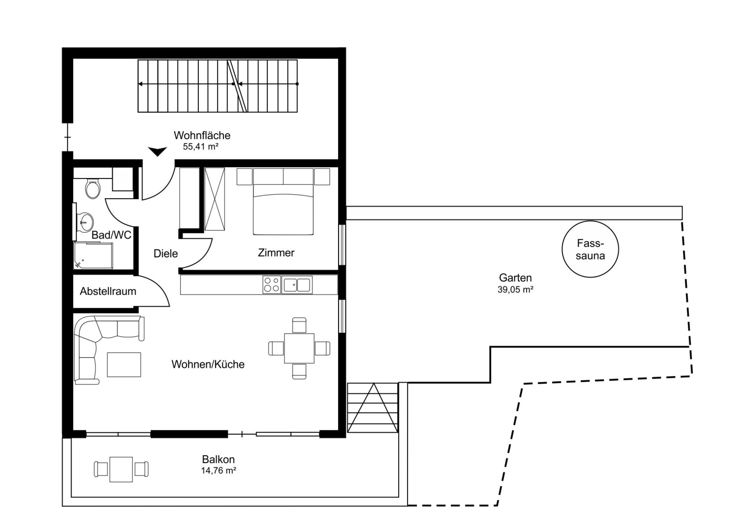
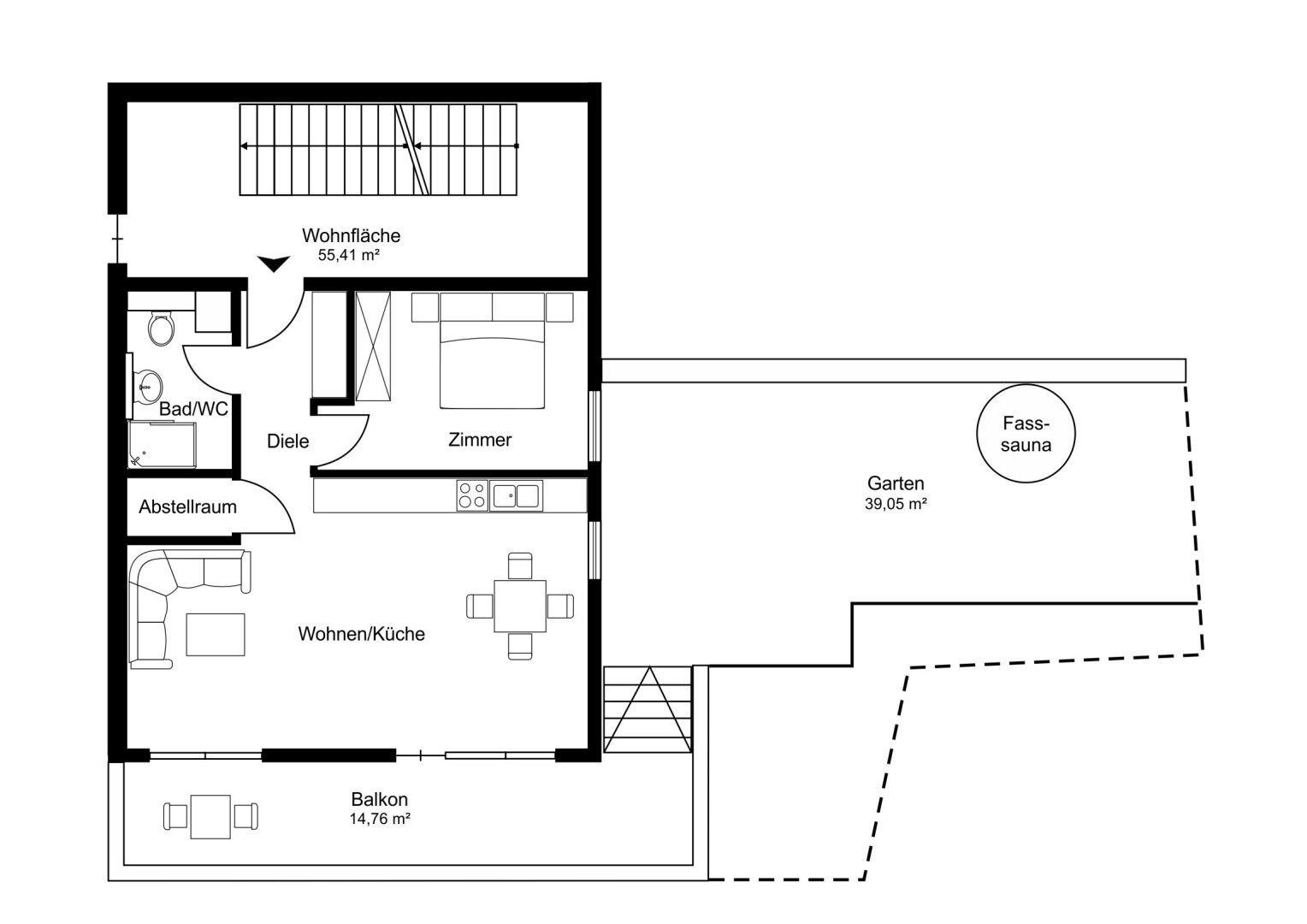
55.412 Zimmer
zu Favoriten hinzufügen
teilen
Suchergebnisse

Objektbeschreibung

Die zum Kauf stehende, exklusive Zweizimmerwohnung mit ca. 55,41 m² Wohnnutzfläche, liegt im Axamer Ortsteil Kristen, ca. 10 Autominuten vom Ortszentrum von Axams entfernt, in einem Mehrparteienhaus mit lediglich 4 Einheiten, welches ca. im Jahr 2017 fertiggestellt wurde. Die gesamte Liegenschaft besteht aus 2 Baukörpern mit insgesamt 8 Wohneinheiten. Schon
Mehr lesen

Ort:
Bezirk:
Bundesland:
PLZ: 6094
Land: Österreich
Objekt ID: 1943915
Preis: € 369.000
Nutzfläche: 55 m2
Gesamtfläche: 0 m2
Ziimmer insgesamt: 2
Schlafzimmer: 2
Badezimmer: 1
Betriebskosten €: 322.03
Nutzungsart: Wohnen
Provisionspflichtig: ja
Provision: 3% des Kaufpreises zzgl. 20% USt.
HWB: 55,30 kWh/(m²*a)
HWB Klasse: C
FGEE: 0.99
E-Ausweis Gültig Bis:: 21.08.2035
Energieausweis Art: Bedarf
Anzahl Balkone: 1
Balkon/Terrassen - Fläche: 14
Beziehbar: nach Vereinbarung
Etage: 1. Etage
WC: 1
Abstellräume: 1
Balkon
Gas
Dusche
Fußbodenheizung
Kabel/Sat-TV
offene Küche
Offene Küche
Freiplatz
Massiv
Massivbauweise
Sauna

Ähnliche Objekte

vergleichen
2ITl3hJV6RnSpUT5eTSkV0

Wohnung mit Balkon, Gemeinschaftsgarten, AAP...

€ 399.000
2
Schlafzimmer
1
Badezimmer
63 m2
Größe
Oktober 21, 2025
vergleichen
3DsLJyLoJYBkEiIYaNcYiY

Wohnung mit Balkon, Gemeinschaftsgarten, AAP...

€ 399.000
2
Schlafzimmer
1
Badezimmer
63 m2
Größe
September 28, 2025
vergleichen
2JuWFjjqQeSiqZkAW1TCpn

AXAMS : NEUWERTIGE, SEHR RUHIG GELEGENE 3-ZI...

€ 475.000
3
Schlafzimmer
1
Badezimmer
74 m2
Größe
Juni 5, 2025

Bettina Leitner Immobilien
Bettina Leitner

Kontaktaufnahme









    • Preisinformation
      Betriebskosten322,03 €
      Objektpreis369.000,00 €

    Vergleichen