Objektbeschreibung
AKTION
GRATIS Küchenpaket mit Geräten INKLUSIVE
KAGRAN LIVING – Neubauwohnungen in 1220 Wien
In der Donaufelder Straße entstand mit KAGRAN LIVING ein modernes Wohnprojekt im 22. Wiener Gemeindebezirk Kagran – einem der beliebtesten Stadtviertel Wiens. Das Projekt wurde auf Eigengrund realisiert und vereint urbanes Wohnen mit höchster Lebensqualität.
Mehr lesen
Objekt ID: 1956147
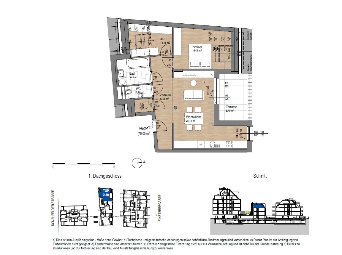
Preis: € 449.000
Nutzfläche: 75 m2
Gesamtfläche: 84 m2
Ziimmer insgesamt: 3
Schlafzimmer: 3
Badezimmer: 1
Nutzungsart: Wohnen
HWB: 29,08 kWh/(m²*a)
HWB Klasse: B
FGEE: 0.69
E-Ausweis Gültig Bis:: 13.05.2031
Energieausweis Art: Bedarf
Balkon/Terrassen - Fläche: 8
Beziehbar: sofort
Etage: 1. DG / erstes Dachgeschoß
WC: 1
Abstellräume: 1
barrierefrei
Neubau
Personenaufzug
Badewanne
Fußbodenheizung
Kabel/Sat-TV
Fahrradraum
offene Küche
Abstellraum
Offene Küche
rollstuhlgerecht
Garage
Massiv
Massivbauweise
Estrich
seniorengerecht
Erdwärme
Ähnliche Objekte
Saniertes Altbaujuwel in absoluter Ruhelage
€ 675.000
2
Schlafzimmer
1
Badezimmer
77 m2
Größe
April 20, 2026
Wohnen nahe der Donauinsel: Helle 2-Zimmer-W...
€ 274.900
2
Schlafzimmer
1
Badezimmer
61 m2
Größe
April 20, 2026
Dachterrassentraum – 3-Zimmer-Eigentum...
€ 499.000
3
Schlafzimmer
1
Badezimmer
90 m2
Größe
April 19, 2026



















