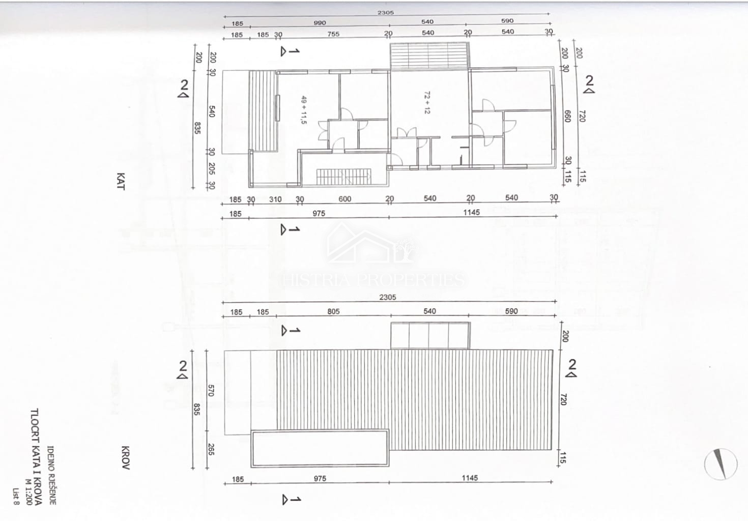
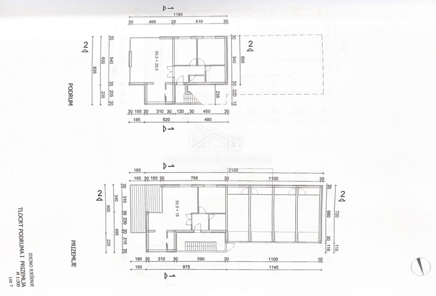
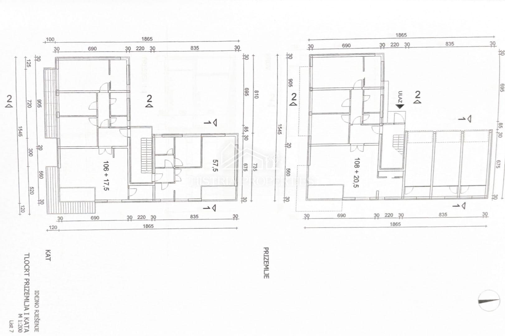
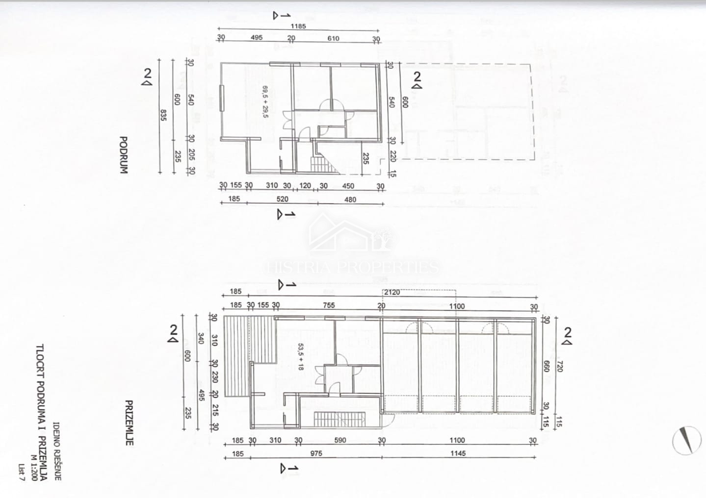
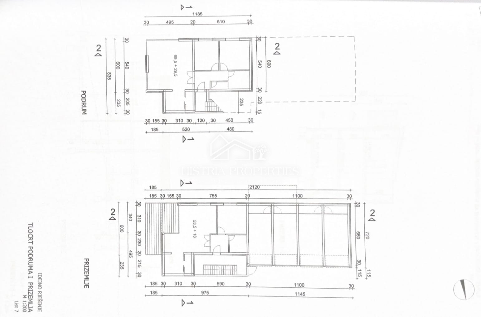
Objektbeschreibung
In zentraler Lage in Zagreb stehen vier Baugrundstücke mit gültiger Baugenehmigung für die Bebauung mit 3-4 Wohneinheiten zum Verkauf.
Das Grundstück ist gerodet und eingezäunt und verfügt über eine genehmigte Zufahrtsstraße.
Die gesamte notwendige Infrastruktur, inklusive eines neuen Umspannwerks, befindet sich in unmittelbarer Nähe.
Für die Grundstücke liegt eine gültige
Mehr lesen
Objekt ID: 1968345
Preis: € 719.996
Nutzfläche: 0 m2
Gesamtfläche: 0 m2
Ziimmer insgesamt: 0
Schlafzimmer: 0
Badezimmer: 0
Nutzungsart: Anlage
Provisionspflichtig: ja













